




$754,990
5122 Hut Crk Road
Johns Island, SC 29455
About This Property
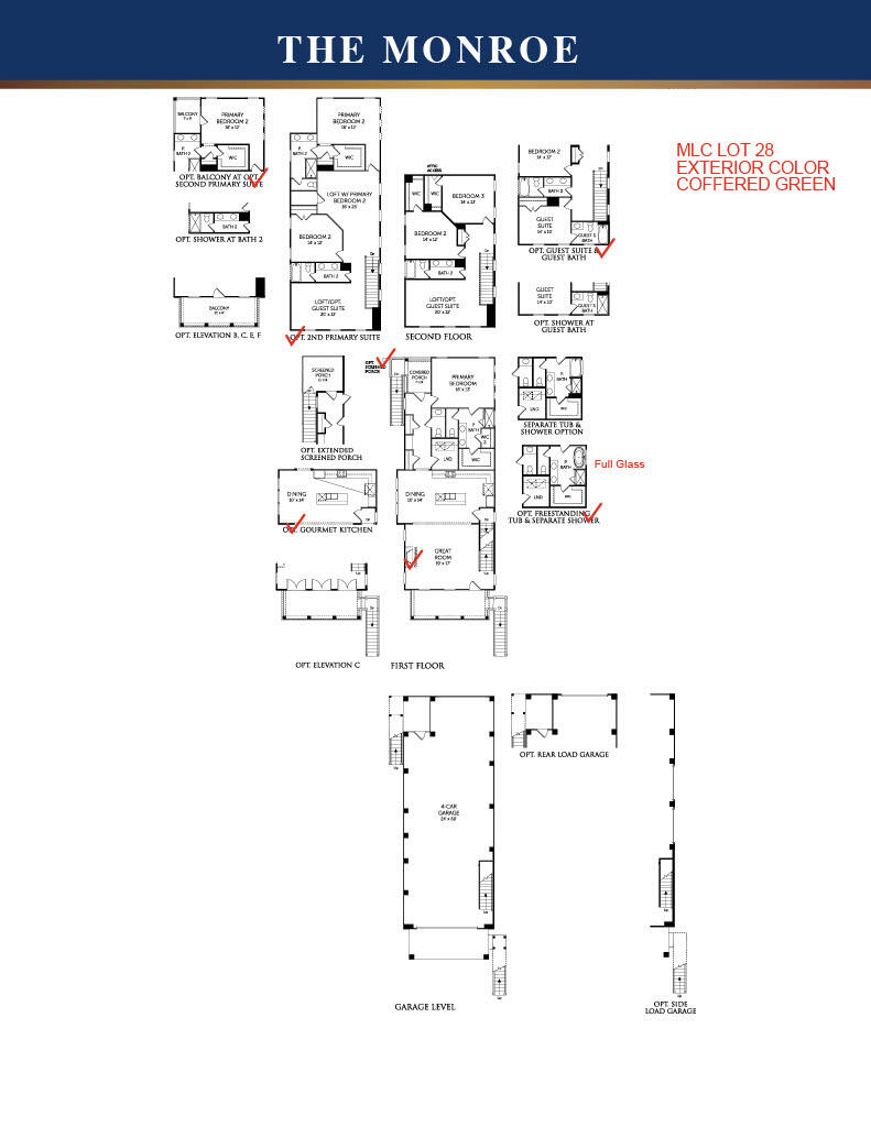
The Monroe is a stunning raised home offering 4 bedrooms and 4.5 baths, including dual owner's suites--one on each floor--for ultimate flexibility. The first-floor owner's suite features a freestanding tub and tiled shower, creating a true spa-like retreat.
Enjoy a gourmet kitchen perfect for entertaining, an open-concept layout with a cozy fireplace, and a spacious loft ideal for a home office or media room. A two-car drive-under garage and 2,799 sq ft of beautifully designed living space complete this perfect blend of comfort and style.Limited-Time Builder Incentive!
Take advantage of a 4.99% fixed-rate loan option, and $10,000 toward closing costs. Enjoy lower monthly payments and reduced upfront expenses - March Only!
Quick Facts
Time on Site
8 months ago
Property Type
Residential
Year Built
2026
Lot Size
10,018 sqft
Property Details
Schools
Features & Amenities
Location & Map
Map View
Loading map...
Additional Information
Lot And Land
Agent Contacts
Green Features
Community & H O A
Room Dimensions
Property Details
Exterior Features
Interior Features
Systems & Utilities
Financial Information
Additional Information
- IDX
- -80.014521
- 32.693832
- Raised


