




$554,990
418 Caledon Court
Johns Island, SC 29455
About This Property
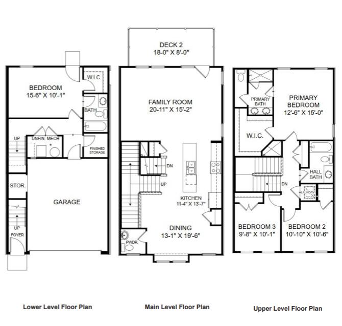
Final 2-car end unit available in Indigo Grove! Welcome to Indigo Grove- Johns Island's most convenient new townhome community located at the foot of Maybank Hwy. Bridge! This home has ALL the bells and whistles PLUS you can even fence in your backyard if wanted! Wide open living, a large deck off the family room and loads of upgrades included in price. Step inside to discover a lower-level bedroom suite complete with its own full bathroom, perfect for hosting guests or creating a private retreat.The main level is designed for entertaining, featuring a spacious family room, modern kitchen, and inviting dining area. Plus, the deck off the family room. for relaxing overlooking woods! Upstairs, the primary bedroom stands out with its generous size, ensuite bathroom and LARGE walk in closet 2 additional bedrooms and another well-appointed hall bathroom complete 3rd floor.
Fee simple, so you can fence your yard. INCLUDED INSIDE: 9 ft ceilings on main and top floors, wood treads on stairs, hard surface flooring in foyer and main living areas, kitchen with 5 burner gas SST range, quartz counters, tile backsplash, and pendant lighting. All bathrooms have tiled floors, quartz counters and undermount sinks. Primary shower has tiled walls. INCLUDED OUTSIDE: Large deck, hardie plank exterior, gutters and irrigation.
Indigo Grove offers modern living just 15 miles from beaches and minutes from downtown Charleston. Enjoy beautiful community amenities including: pool, covered pavilion, walking trails, and easy access to shopping and dining. Experience the charm of Johns Island, where a vibrant culinary scene, scenic parks, and lively community events create an inviting lifestyle. Ideally situated with convenient access to Downtown Charleston, world-class golf courses, and beautiful beaches! Call today to schedule a tour!
Quick Facts
Time on Site
2 months ago
Property Type
Residential
Year Built
2026
Lot Size
2,178 sqft
Property Details
Schools
Features & Amenities
Location & Map
Map View
Loading map...
Additional Information
Lot And Land
Agent Contacts
Green Features
Community & H O A
Room Dimensions
Property Details
Exterior Features
Interior Features
Systems & Utilities
Financial Information
Additional Information
- IDX
- -80.032261
- 32.748057
- Raised Slab
- Slab


