




$299,000
251 Boseman Road
Irmo, SC 29063
About This Property
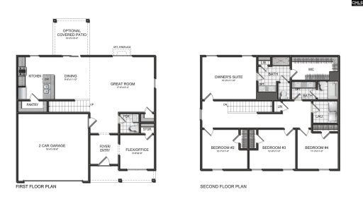
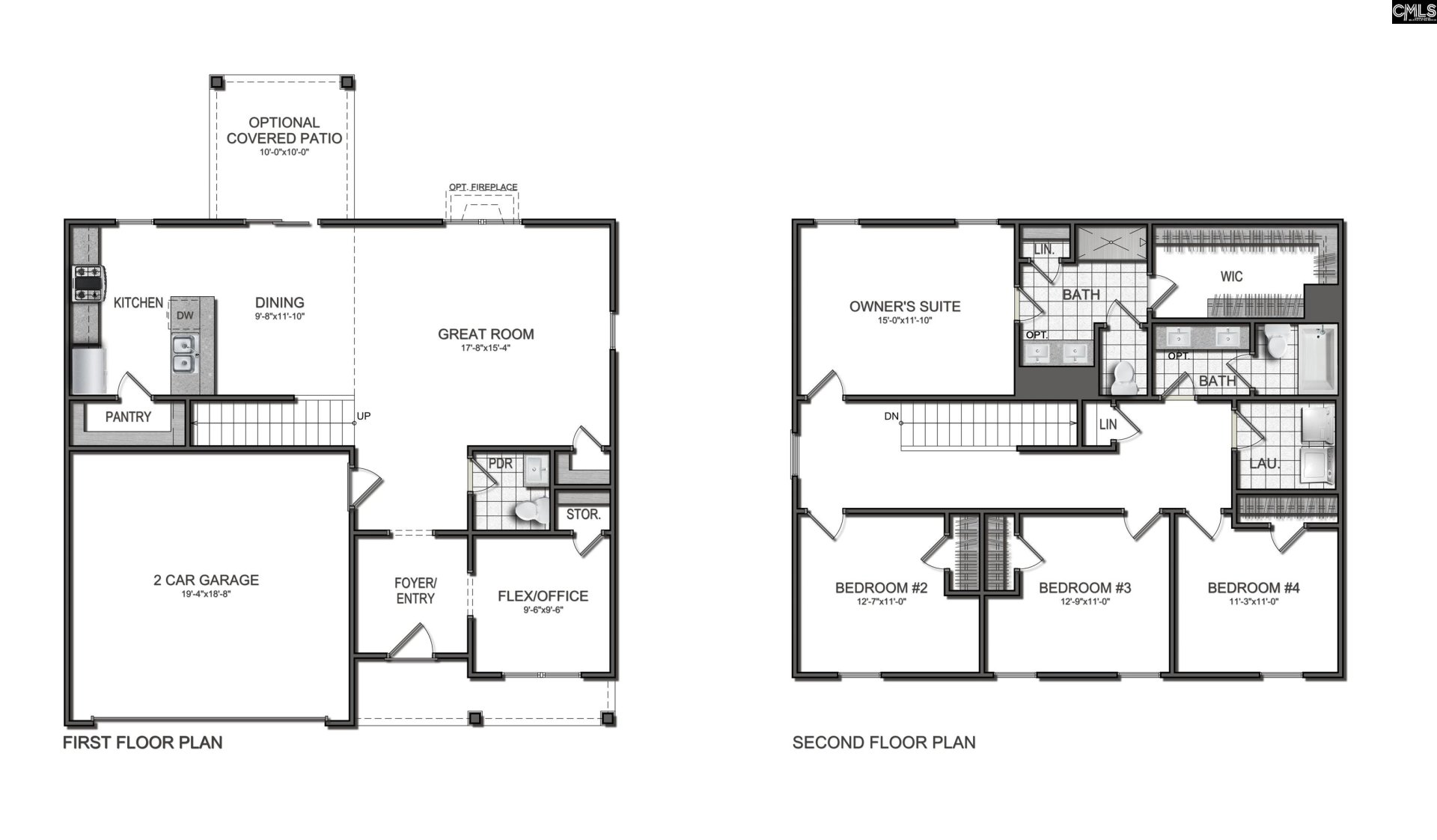
Welcome to Old Tamah- where timeless charm meets modern living! Take advantage of the 10K your Way to use for options or closing cost with preferred lender. Upon entry, the Moultrie II welcomes you into a spacious foyer that leads into the open floor plan, with a flex space/office and powder room, and seamlessly connects the large living room and dining area- a perfect space for gatherings and entertainment.
The owner suite on second level is a true retreat, away from secondary bedrooms, it allows for privacy and comfort, with a spa inspired bathroom, leading into a 'dream' of a walk-in closet. Ultimate convenience provides the laundry room upstairs for all bedrooms easy access. The 3 other bedrooms are spacious and share a well designed bathroom.
The backyard provides privacy and peaceful views , backed up to woods, step on the patio from the kitchen, where you'll find impressive finishes and selections, granite counters, GE appliances, ample cabinet space, large pantry. The location speaks for itself, Dutch Fork Schools, Irmo Lexington and Chapin dining and shopping, easy access to I-26 to downtown Columbia ( 25 minutes) Lake Murray fun and leisure ( 10 minutes) The historic City of Charleston, boasting with culture, beaches and history ( 2 hours) or a mountain trip to Asheville ( 2 hours 15 min). Old Tamah invites you to be part of this peaceful community, nestled into the Dutch Fork school district 5.
COL MLS # 620655
Quick Facts
Time on Site
6 months ago
Property Type
Residential
Year Built
2025
Lot Size
6,098 sqft
Price/Sq.Ft.
$146
Property Details
Schools
Features & Amenities
Location & Map
Map View
Loading map...
Additional Information
Lot & Land
Room Details
- Island
- Pantry
- Counter Tops-Granite
- Floors-Luxury Vinyl Plank
Parking & Garage
- Garage Attached
- Front Entry
Exterior Features
- Stone
- Vinyl
Property Overview
Utilities & Systems
Listing Agent Information
Details provided by Consolidated MLS and may not match the public record. Learn more. The information is being provided by Consolidated Multiple Listing Service, Inc. Information deemed reliable but not guaranteed. Information is provided for consumers' personal, non-commercial use, and may not be used for any purpose other than the identification of potential properties for purchase. © 2025 Consolidated Multiple Listing Service, Inc. All Rights Reserved.


