




$279,800
119 Locomotive (Lot 12) Lane
About This Property
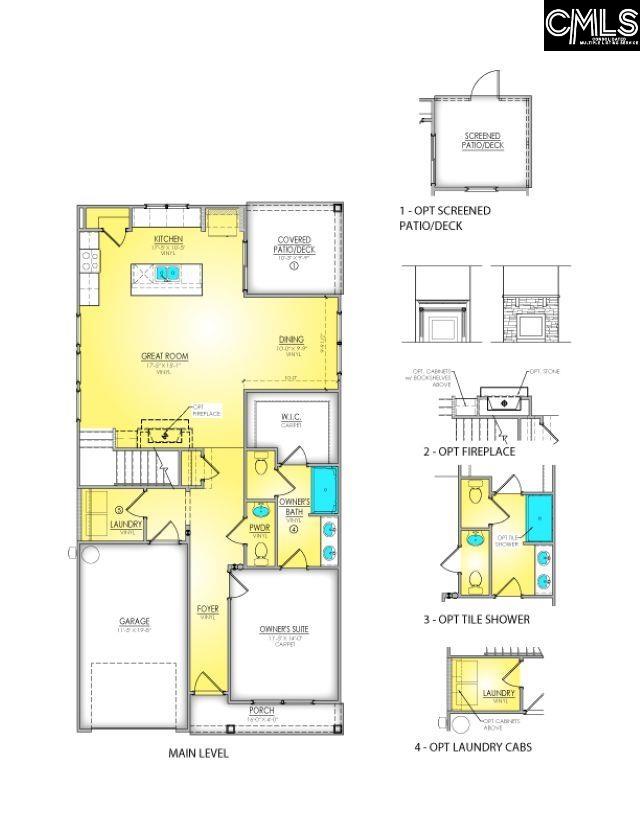
Welcome to Bickley Station! Discover the Glenwood II, thoughtfully designed with 1,793 square feet of comfortable, low-maintenance living. With three bedrooms and two and a half bathrooms, this home provides just the right amount of space—perfect for smaller families who value quality over excess.
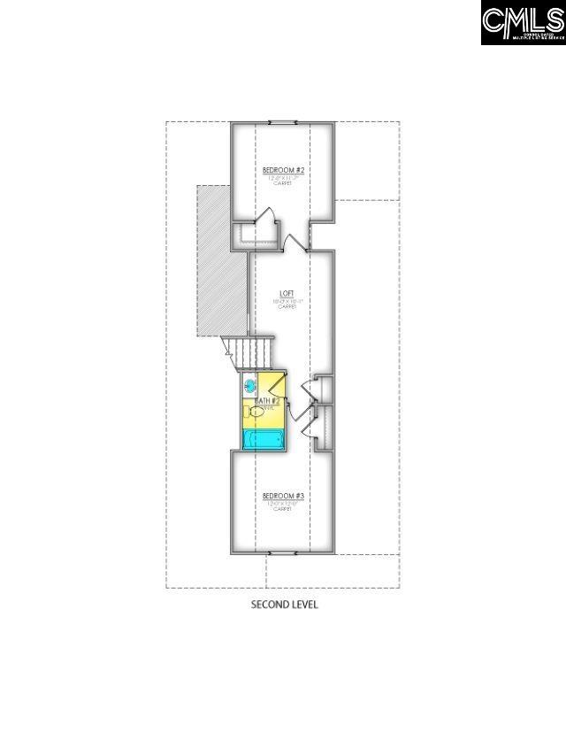
The open-concept great room flows effortlessly into the kitchen and dining area, creating a bright, welcoming space for both everyday living and hosting friends. The main-floor owner’s suite offers the convenience of single-level living, complete with a private ensuite bathroom for your comfort. Upstairs, two additional bedrooms and a hall bath are perfect for guests, grandkids, or a hobby space.
Enjoy the outdoors with an optional screened patio—ideal for morning coffee or evening relaxation. The single-car garage provides just enough room for parking and storage without the upkeep of a larger space. Best of all, this home is move-in ready and can close in just 30 days!
COL MLS # 625969
Quick Facts
Time on Site
1 month ago
Property Type
Residential
Year Built
2025
Lot Size
4,356 sqft
Price/Sq.Ft.
$156
Property Details
Schools
Features & Amenities
Location & Map
Map View
Loading map...
Additional Information
Laundry
- Electric
- Heated Space
Lot & Land
Room Details
- Island
- Pantry
- Counter Tops-Granite
- Cabinets-Painted
- Floors-Luxury Vinyl Plank
- Ceiling Fan
- Floors-Luxury Vinyl Plank
Miscellaneous
Primary Suite
- Double Vanity
- Bath-Private
- Separate Shower
- Closet-Walk in
- Ceiling Fan
- Separate Water Closet
- Floors - Carpet
- Floors-Luxury Vinyl Plank
Interior Details
- Free-standing
- Self Clean
- Smooth Surface
- Dishwasher
- Disposal
- Microwave Above Stove
- Tankless H20
Parking & Garage
- Garage Attached
- Front Entry
Exterior Features
H O A & Association
- Front Yard Maintenance
- Green Areas
Property Overview
Utilities & Systems
- Gas 1st Lvl
- Gas 2nd Lvl
Listing Agent Information
Details provided by Consolidated MLS and may not match the public record. Learn more. The information is being provided by Consolidated Multiple Listing Service, Inc. Information deemed reliable but not guaranteed. Information is provided for consumers' personal, non-commercial use, and may not be used for any purpose other than the identification of potential properties for purchase. © 2025 Consolidated Multiple Listing Service, Inc. All Rights Reserved.
