



$265,000
7253 New Harmony Way
Inman, SC 29349
About This Property
This Property Has Been Sold
This property sold 6 months ago and is no longer available for purchase.
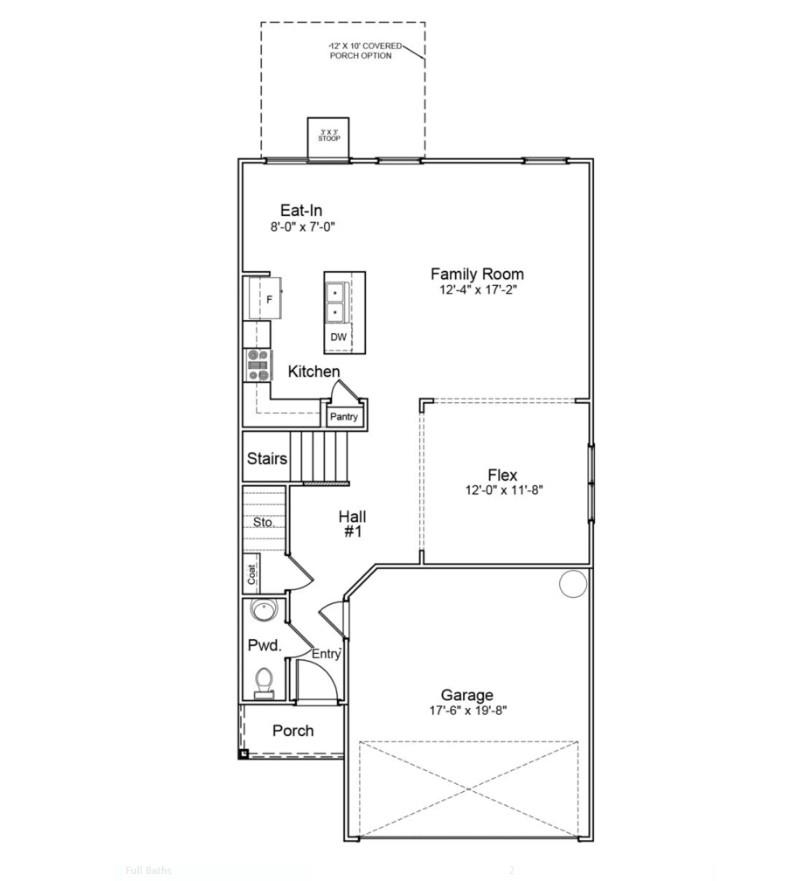
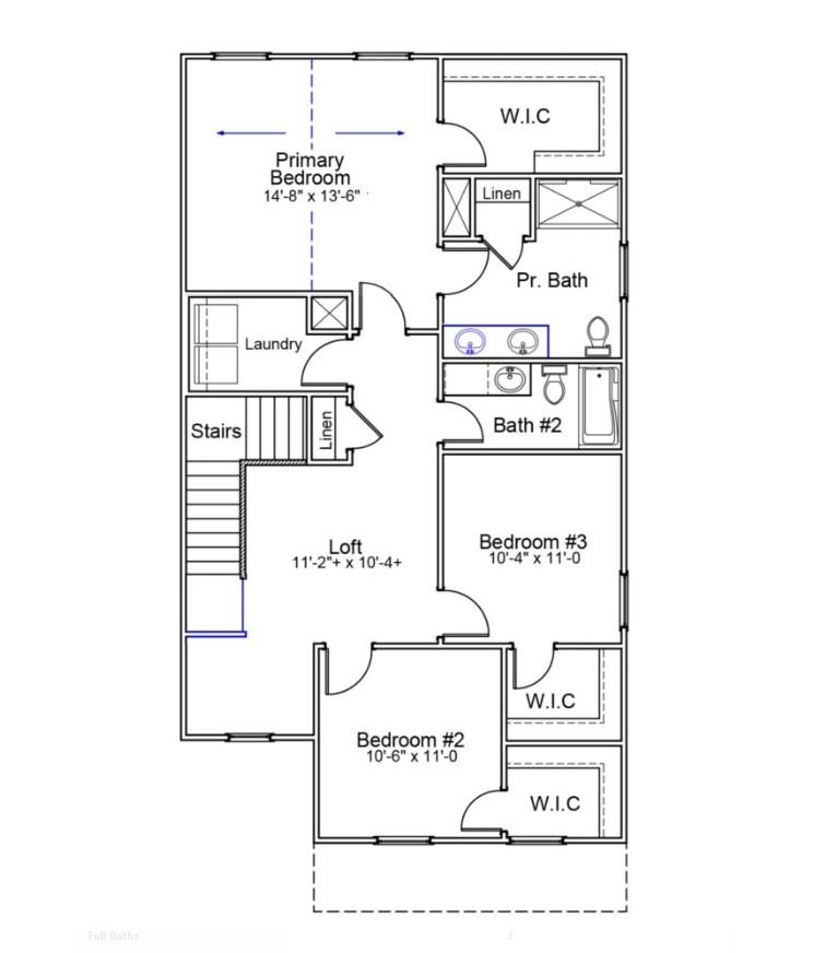
View active listings in Wingate →This charming two-story home features three bedrooms—each with a walk-in closet—and two-and-one-half bathrooms. The first floor boasts nine-foot ceilings, a spacious great room, a kitchen with an eat-in dining area, a versatile flex space, and a two-car garage. Upstairs, a loft offers endless possibilities as a second living area, media room, or playroom.
Two additional bedrooms, a full bathroom, and a conveniently located laundry room complete the hall. The highlight of the second floor is the primary suite, which features a vaulted ceiling, a generous walk-in closet, and a private bathroom. With so much to offer, this home is a must-see in Wingate—schedule your visit today!
SPN MLS # 321023
Quick Facts
Time on Site
1 year ago
Property Type
Residential
Year Built
2025
Lot Size
6,534 sqft
Price/Sq.Ft.
$136
Property Details
Schools
Features & Amenities
Features:
- Walk-In Closet(s)
- Ceiling - Smooth
- Solid Surface Counters
- Open Floorplan
- Walk-In Pantry
Location & Map
Map View
Loading map...
Additional Information
Basement
Security
- Smoke Detector(s)
Community
- Common Areas
- Street Lights
Lot & Land
Primary Suite
- Bath - Full
- Double Vanity
- Multiple Closets
- Owner on 2nd level
- Shower Only
- Walk-in Closet
Interior Details
- Carpet
- Luxury Vinyl
- Gas Cooktop
- Electric Oven
- Attic
- Loft
- Office/Study
- Insulated Windows
- Tilt-Out
- 2nd Floor
- Walk-In
- Walk-In Closet(s)
- Ceiling - Smooth
- Solid Surface Counters
- Open Floorplan
- Walk-In Pantry
New Construction
Parking & Garage
- Attached
- Garage Door Opener
- Garage
Exterior Features
- Composition
- Slab
- Vinyl Siding
- Patio
- Porch
H O A & Association
- Common Area
- Street Lights
Property Overview
- Two
Utilities & Systems
- Public Sewer
- Central Air
- Available
Listing Agent Information
You Might Also Like...
Interested in selling in Wingate?


