



$289,000
7246 New Harmony Way
Inman, SC 29349
About This Property
This Property Has Been Sold
This property sold 6 months ago and is no longer available for purchase.
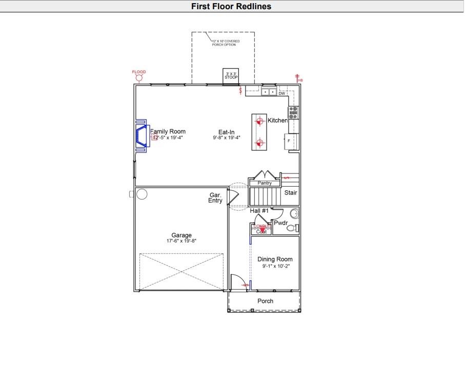
View active listings in Wingate →**ESTIMATED COMPLETION AUGUST 2025** This two-story home includes 4 bedrooms and 2.5 bathrooms. The entrance from the attached two-car garage leads to the kitchen and eat-in, which also connects to the family room with a fireplace.
Near the front door is the dining room. Upstairs, the primary bedroom leads to a primary bathroom with two linen closets, access to a large walk-in clothes closet. The laundry room is conveniently located just outside the primary bedroom, close to the three spare bedrooms and their full bathroom.
This impressive home is in Wingate - schedule a viewing today!
SPN MLS # 323377
Quick Facts
Time on Site
11 months ago
Property Type
Residential
Year Built
2025
Lot Size
4,356 sqft
Price/Sq.Ft.
$133
Property Details
Schools
Features & Amenities
Features:
- Cable Available
- Attic Stairs Pulldown
- Walk-In Closet(s)
- Ceiling - Smooth
- Solid Surface Counters
- Open Floorplan
Location & Map
Map View
Loading map...
Additional Information
Basement
Community
- Common Areas
- Street Lights
Lot & Land
- Many Trees
- Underground Utilities
Primary Suite
- Bath - Full
- Double Vanity
- Owner on 2nd level
- Shower Only
- Walk-in Closet
Interior Details
- Carpet
- Luxury Vinyl
- Gas Cooktop
- Microwave
- Electric Oven
- Tilt-Out
- 2nd Floor
- Walk-In
- Cable Available
- Attic Stairs Pulldown
- Walk-In Closet(s)
- Ceiling - Smooth
- Solid Surface Counters
- Open Floorplan
- Gas Log
New Construction
Parking & Garage
- Attached
- 2 Car Attached
- Garage Door Opener
Exterior Features
- Composition
- Attic
- Garage
- Slab
- Vinyl Siding
- Patio
- Porch
H O A & Association
- Common Area
- Street Lights
Property Overview
- Two
- Craftsman
Utilities & Systems
- Public Sewer
- Central Air
- Forced Air
- Gas
- Tankless
- Public
Listing Agent Information
You Might Also Like...
Interested in selling in Wingate?


