




$435,000
408 Majestic View Court
Inman, SC 29349
About This Property
This Property Has Been Sold
This property sold 3 years ago and is no longer available for purchase.
View active listings in Cool Waters →**Open house and Moving sale Sat. & Sun. May 13th/14th from 11am-3pm Come join us!**
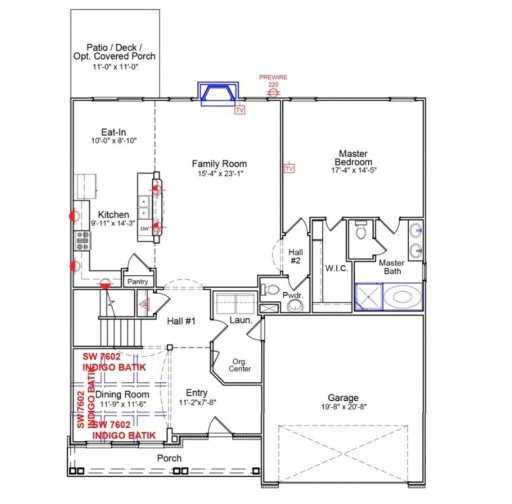
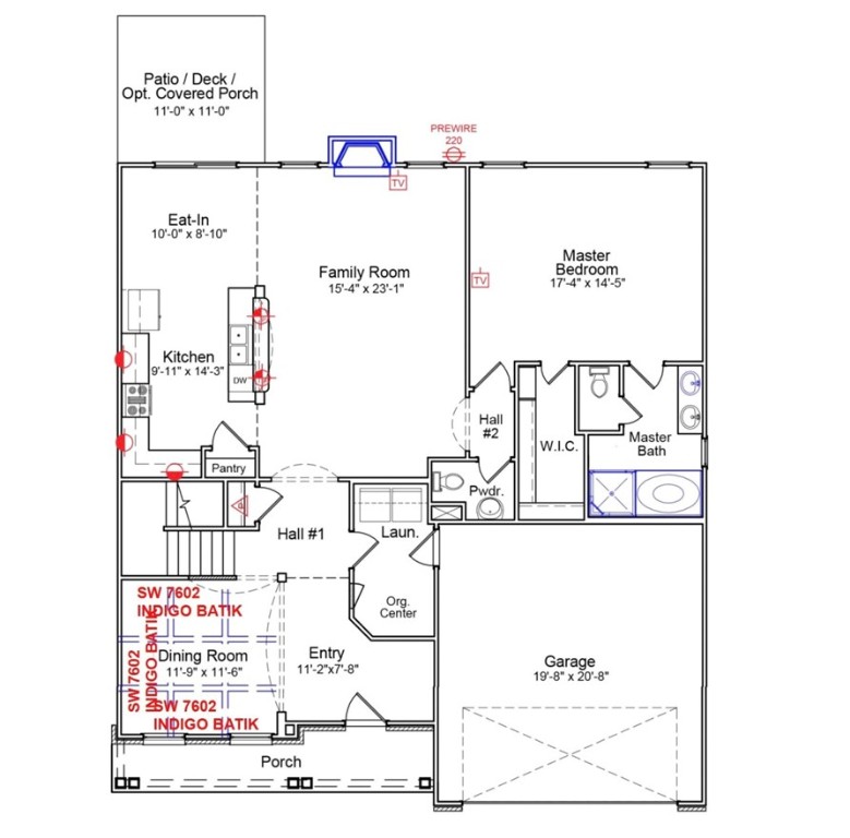
Come gather around the exterior covered porch or hangout underneath the outdoor pergola in your dream home. Celebrate your favorite sports team or relax in the jacuzzi! On this stunning green property just around the corner from Lake Cooley let this be your new home. With a master on the main floor, a fireplace in the living room, and four extra spacious rooms upstairs as well as a bonus room that could be a movie theater. This property has it all including three full baths, a half bath and a tankless water heater for constant hot water flow. Enjoy breakfast in the eat in kitchen and dinner in the formal dining room, whether you're in either enjoy the built-in speaker system with some of your favorite music. Checkout the floorplans to look at all the extra storage on each floor/attic space! This home is nestled ten minutes from countless restaurants and grocery shopping. Big traveler? Your new home is only 25 minutes from Greenville Spartanburg Airport. Or enjoy a night on the town in Downtown Greenville with a short 35 minute drive. This home has it all! Setup your showing today!
WUM MLS # 1037370581
Quick Facts
Time on Site
3 years ago
Property Type
Residential
Year Built
2016
Price/Sq.Ft.
$149
Property Details
Schools
Features & Amenities
Location & Map
Map View
Loading map...
Additional Information
Lot & Land
- Level
- OutsideCityLimits
- Subdivision
Community & H O A
- Other
- SeeRemarks
Tax Information
Parking & Garage
- Attached
- Garage
- Driveway
Property Details
Exterior Features
- Architectural
- Shingle
- FrontPorch
- Patio
- Brick
- VinylSiding
- Porch
- Patio
Interior Features
- Carpet
- CeramicTile
- Dishwasher
- ElectricOven
- ElectricRange
- Microwave
- Refrigerator
- TanklessWaterHeater
- BreakfastRoomNook
- BonusRoom
- DiningRoom
- Laundry
- Bathtub
- DualSinks
- Fireplace
- GraniteCounters
- HotTubSpa
- SeparateShower
- BreakfastArea
Systems & Utilities
- CentralAir
- Electric
- Central
- Electric
- ElectricityAvailable
- SepticAvailable
Listing Agent Information
This information is deemed reliable, but not guaranteed. Neither, the Western Upstate Association of REALTORS®, Inc. or Western Upstate Multiple Listing Service of South Carolina Inc., nor the listing broker, nor their agents or subagents are responsible for the accuracy of the information. The buyer is responsible for verifying all information. This information is provided by the Western Upstate Association of REALTORS®, Inc. and Western Upstate Multiple Listing Service of South Carolina, Inc. for use by its members and is not intended for the use for any other purpose. Information is provided for consumers' personal, non-commercial use, and may not be used for any purpose other than the identification of potential properties for purchase. The data relating to real estate for sale on this Web site comes in part from the Broker Reciprocity Program of the Western Upstate Association of REALTORS®, Inc. and the Western Upstate Multiple Listing Service, Inc.
You Might Also Like...
Interested in selling in Cool Waters?


