


$236,666
322 Elevation Court
Inman, SC 29349
About This Property
This Property Has Been Sold
This property sold 5 years ago and is no longer available for purchase.
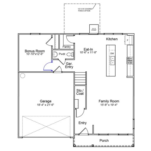
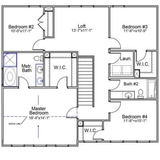
View active listings in Butler Knoll →Two-story four bedroom, two-and-one-half bath McDowell home includes a bonus room and loft area giving ample amount of space throughout the home! Upon entry of your home you are met with the spacious family room. Right next to the family room lies the kitchen that comes equipped with stainless steel appliances with upgraded white cabinets and El Dorado granite countertops with two stylish pendant lights hanging overhead of the Island.
As we stroll in the home you will notice a hidden bonus room and half bath. Going upstairs you will meet the loft area space. Transitioning into the primary bedroom that boast a spacious area, upgraded flooring, walk-in-closet and luxurious bathroom with a walk-in-shower, linen closet, and dual raised vanities with granite countertops!
Upgraded flooring is included in all the down stairs areas and the primary bedroom and bathroom, the primary includes el dorado granite countertops and dual raised vanities and white cabinets, the connected bathroom also includes a garden tub and separate walk in shower.
SPN MLS # 275931
Quick Facts
Time on Site
5 years ago
Property Type
Residential
Year Built
2020
Lot Size
5,662 sqft
Price/Sq.Ft.
$99
Property Details
Schools
Features & Amenities
Features:
- Cable Available
- Attic Stairs Pulldown
- Walk-In Closet(s)
- Soaking Tub
- Ceiling - Smooth
Location & Map
Map View
Loading map...
Additional Information
Basement
Lot & Land
- Level
Primary Suite
- Bath - Full
- Double Vanity
- Owner on 2nd level
- Shower-Separate
- Tub-Garden
- Tub-Separate
- Walk-in Closet
Interior Details
- Carpet
- Vinyl
- Dishwasher
- Disposal
- Microwave
- Cooktop
- Electric Cooktop
- Electric Oven
- Self Cleaning Oven
- Bonus
- Loft
- Cable Available
- Attic Stairs Pulldown
- Walk-In Closet(s)
- Soaking Tub
- Ceiling - Smooth
New Construction
Parking & Garage
- Attached
- Garage Door Opener
- Garage
Exterior Features
- Composition
- Aluminum/Vinyl Trim
- Slab
- Brick Veneer
- Vinyl Siding
- Patio
- Porch
H O A & Association
- Common Area
- Street Lights
Property Overview
- Two
- Traditional
- Craftsman
Utilities & Systems
- Public Sewer
- Central Air
- Forced Air
Listing Agent Information
You Might Also Like...
Interested in selling in Butler Knoll?


