

$246,865
322 Bellrock Road
Inman, SC 29349
About This Property
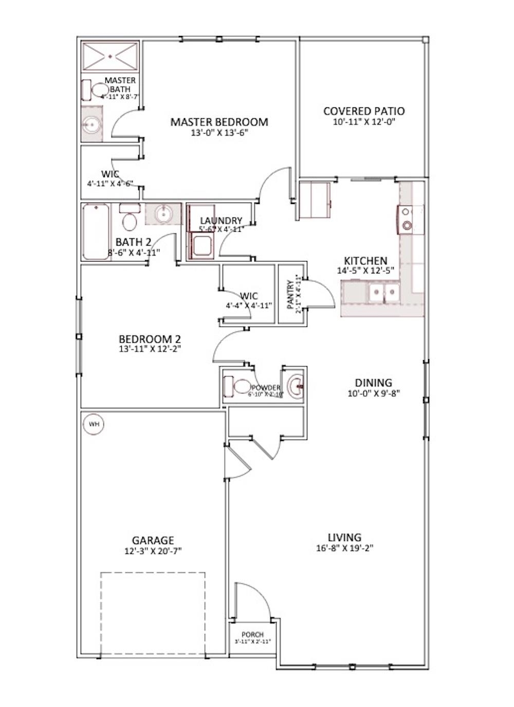
Welcome to the beautifully designed Wrenley Plan, located in the desirable Stone’s Throw community in Inman, SC. This thoughtfully crafted 2-bedroom, 2.5-bath home offers 1,192 square feet of efficient, low-maintenance living with modern finishes throughout.
The open-concept main level features a spacious living area that flows seamlessly into the kitchen and dining space. The kitchen is equipped with stylish cabinetry, granite countertops, stainless steel appliances, and a convenient island for additional prep and seating space. A powder room on the main floor adds functionality for guests.
Two generously sized bedrooms, each with its own private full bathroom—ideal for roommates, guests, or added privacy. The owner’s suite includes a walk-in closet.Located in the growing Stone’s Throw community, you’ll enjoy easy access to shopping, dining, schools, and major highways while still experiencing the charm of Inman living.
SPN MLS # 333762
Quick Facts
Time on Site
20 days ago
Property Type
Residential
Year Built
2026
Lot Size
5,227 sqft
Price/Sq.Ft.
$207
Property Details
Schools
Features & Amenities
Location & Map
Map View
Loading map...
Additional Information
Basement
Security
- Smoke Detector(s)
Lot & Land
Primary Suite
- Bath - Full
- Owner on Main Level
- Shower Only
- Walk-in Closet
Interior Details
- Carpet
- Luxury Vinyl
- Electric Cooktop
- Cooktop
- Dishwasher
- Disposal
- Microwave
- Electric Oven
- Self Cleaning Oven
- Range
- Attic
- Comb. Living & Din Room
- Main Fl Master Bedroom
- Tilt-Out
- 1st Floor
- Electric Dryer Hookup
- Walk-In
- Washer Hookup
- Ceiling Fan(s)
- Cable Available
- Attic Stairs Pulldown
- Walk-In Closet(s)
- Solid Surface Counters
- Open Floorplan
- Walk-In Pantry
New Construction
Parking & Garage
- Attached
- Garage Door Opener
- Driveway
- Garage
Exterior Features
- Architectural
- Attic
- Garage
- Aluminum/Vinyl Trim
- Slab
- Stone
- Vinyl Siding
- Porch
- Covered Patio
H O A & Association
Property Overview
- One
- Craftsman
Utilities & Systems
- Public Sewer
- Central Air
- Heat Pump
- Public


