




$359,068
2130 Zanes Creek Drive
About This Property
This Property Has Been Sold
This property sold 10 months ago and is no longer available for purchase.
View active listings in Zane's Creek →ZANES CREEK a BEAUTIFUL, BRAND NEW community located in Boiling Springs!! Sought after Boiling Springs School system! Shopping, grocery, restaurants, I 85, I 26 all close by and more!
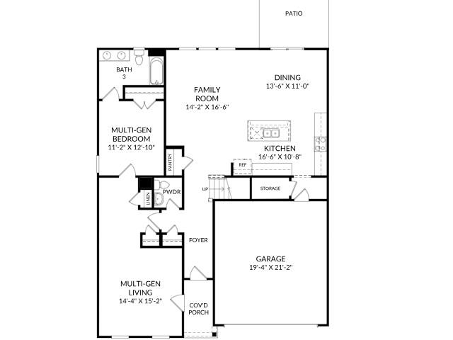
You'll LOVE the MATHIS home floorplan, where practicality meets luxury, and every detail is crafted for Multi generation/modern living. This versatile area includes a comfortable living space, spacious bedroom and closet, and a well-appointed bathroom with double sinks and a relaxing shower. The main highlight on this level is the open concept kitchen equipped with a pantry for organization, a central kitchen island for meal prep and gathering, and seamless connection into the dining and family room areas that are perfect for both everyday living and entertaining!
Ascending to the upstairs you will find your sanctuary in the primary bedroom retreat with an en suite bathroom and large walk-in closet to satisfy any wardrobe enthusiast. Three more generously sized bedrooms, each with its own walk-in closets gives privacy and comfort for every member of the household. We are nestled near Lake Bowen and Woodfin Country Club with the family membership included for 1st year, a short distance to Spartanburg, Greenville, and Asheville.
Quick Facts
Time on Site
1 year ago
Property Type
Residential
Year Built
2024
Lot Size
6,534 sqft
Price/Sq.Ft.
$111
Property Details
Schools
Features & Amenities
Location & Map
Map View
Loading map...
Additional Information
Basement
Security
- Smoke Detector(s)
Community
- Common Areas
- Street Lights
Lot & Land
- Level
- Underground Utilities
Primary Suite
- Bath - Full
- Double Vanity
- Owner on 2nd level
- Shower Only
- Walk-in Closet
Interior Details
- Carpet
- Ceramic Tile
- Laminate
- Dishwasher
- Disposal
- Refrigerator
- Microwave
- Gas Range
- Loft
- Other/See Remarks
- Insulated Windows
- Tilt-Out
- Window Treatments
- 2nd Floor
- Electric Dryer Hookup
- Walk-In
- Washer Hookup
- Ceiling Fan(s)
- Cable Available
- High Ceilings
- Fireplace
- Walk-In Closet(s)
- Ceiling - Smooth
- Solid Surface Counters
- Open Floorplan
- In-Law Floorplan
- Pantry
- Smart Home
- Gas Log
New Construction
Parking & Garage
- Garage
- Garage Door Opener
- 2 Car Attached
Additional Living
Exterior Features
- Architectural
- Attic
- Garage
- Aluminum/Vinyl Trim
- Slab
- Stone
- Vinyl Siding
- Patio
- Covered
H O A & Association
- Common Area
- Street Lights
Property Overview
- Two
- Traditional
- Craftsman
Utilities & Systems
- Public Sewer
- Central Air
- Forced Air
- Gas
- Tankless
- Public
