




$399,000
1722 Watersail Lane
About This Property
This Property Has Been Sold
This property sold 8 months ago and is no longer available for purchase.
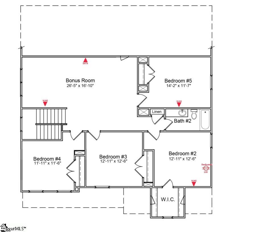
View active listings in The Cottages at Lake Emory →This Victor is a beautiful five bedroom, two and one half bathroom, two car garage home with an open plan featuring luxury vinyl flooring on the main level living areas. As you walk into the home you will notice the formal dining room leading to the main living area. The family room has opens up to the kitchen, eat-in and stunning sunroom.
This space is perfect for entertaining friends and family or hosting those special holidays or get-togethers! The kitchen features a large island, granite countertops, and stainless electric gourmet appliances. The primary bedroom is also downstairs; boasting a five foot tile shower, and large walk in closet.
Upstairs there are four bedrooms which have large walk-in closets and an oversized walk-in loft.
GVL MLS # 1546066
Quick Facts
Time on Site
1 year ago
Property Type
Residential
Year Built
2025
Lot Size
8,276 sqft
Price/Sq.Ft.
$132
Property Details
Schools
Features & Amenities
Location & Map
Map View
Loading map...
Additional Information
Agent Contacts
- Greenville: (864) 757-4000
- Simpsonville: (864) 881-2800
Community & H O A
Room Dimensions
Property Details
Exterior Features
- Patio
- Porch-Front
- Tilt Out Windows
- Sprklr In Grnd-Full Yard
Interior Features
- 1st Floor
- Walk-in
- Carpet
- Vinyl
- Luxury Vinyl Tile/Plank
- Dishwasher
- Disposal
- Oven(s)-Wall
- Cook Top-Electric
- Oven-Electric
- Microwave-Built In
- Range Hood
- Attic
- Garage
- Laundry
- Sun Room
- Bonus Room/Rec Room
- Breakfast Area
- Attic Stairs Disappearing
- Ceiling 9ft+
- Ceiling Smooth
- Open Floor Plan
- Smoke Detector
- Walk In Closet
- Countertops – Quartz
- Pantry – Closet
- Radon System
- Smart Systems Pre-Wiring
Systems & Utilities
Showing & Documentation
- Warranty Furnished
- House Plans
- Restric.Cov/By-Laws
- Pre-approve/Proof of Fund
- Specified Sales Contract
The information is being provided by Greater Greenville MLS. Information deemed reliable but not guaranteed. Information is provided for consumers' personal, non-commercial use, and may not be used for any purpose other than the identification of potential properties for purchase. Copyright 2025 Greater Greenville MLS. All Rights Reserved.
