




$319,990
15015 Juglans Court
Inman, SC 29349
About This Property
This Property Has Been Sold
This property sold 1 month ago and is no longer available for purchase.
View active listings in Walnut Ridge →Welcome to Walnut Ridge! New craftsman-style single-family homes ideally located between Lake Bowen and Boiling Springs! Home is complete, pictures coming soon.
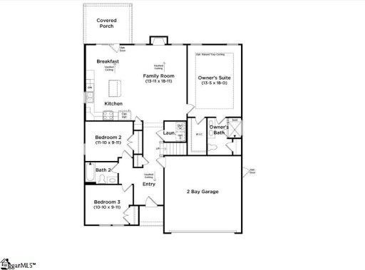
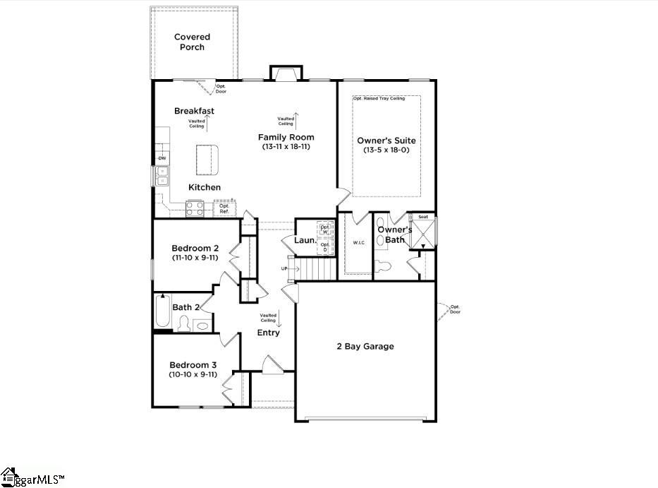
The Parker is main floor living at its best! Entering your Craftsman style home from your covered front porch you have 2 bedrooms and a full bath adjacent to the spacious foyer. As you come into the living room, you will love how open and bright the room is with the high ceilings and tall windows that give the room lots of natural light along with a cozy gas fireplace with stone surround.
The chefs kitchen features beautiful white cabinetry, granite countertops, center island for additional seating and prep space, tiled backsplash, under cabinet lighting, and stainless steel gas appliances. Off the breakfast area there is a covered back porch overlooking your large backyard. The Primary Suite is right off the living room and features double sinks, generous walk in closet and tiled shower with seat and glass door.
GVL MLS # 1580583
Quick Facts
Time on Site
3 months ago
Property Type
Residential
Year Built
2026
Lot Size
10,018 sqft
Price/Sq.Ft.
$177
HOA Fees
$650/yr
Property Details
Schools
Features & Amenities
Features:
- High Ceilings
- Ceiling Fan(s)
- Ceiling Smooth
- Granite Counters
- Open Floorplan
- Walk-In Closet(s)
- Split Floor Plan
- Pantry
Location & Map
Map View
Loading map...
Additional Information
Community
- Common Areas
- Street Lights
- Dog Park
Lot & Land
- 1/2 Acre or Less
- Corner Lot
Tax Information
Interior Details
- Carpet
- Luxury Vinyl
- Dishwasher
- Disposal
- Free-Standing Gas Range
- Self Cleaning Oven
- Gas Oven
- Microwave
- Gas Water Heater
- 1st Floor
- Electric Dryer Hookup
- Laundry Room
- High Ceilings
- Ceiling Fan(s)
- Ceiling Smooth
- Granite Counters
- Open Floorplan
- Walk-In Closet(s)
- Split Floor Plan
- Pantry
- Gas Log
Parking & Garage
- Attached
- Paved
- Garage Door Opener
Exterior Features
- Architectural
- Attached
- Paved
- Garage Door Opener
- Slab
- Front Porch
- Rear Porch
- Vinyl Siding
- Under Ground Irrigation
H O A & Association
- Street Lights
Property Overview
- Two
- Craftsman
Utilities & Systems
- Public Sewer
- Electric
- Natural Gas
- Cable Available
- Public
Listing Agent Information
The information is being provided by Greater Greenville MLS. Information deemed reliable but not guaranteed. Information is provided for consumers' personal, non-commercial use, and may not be used for any purpose other than the identification of potential properties for purchase. Copyright 2025 Greater Greenville MLS. All Rights Reserved.
You Might Also Like...
Interested in selling in Walnut Ridge?

