




$405,000
136 Wendy Lane
Inman, SC 29349
About This Property
This Property Has Been Sold
This property sold 4 years ago and is no longer available for purchase.
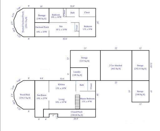
View active listings in Lake Bowen →Enjoy lake life with this 2 bd/2 bath home with a room with closet in the basement that is used as a 3rd bedroom, 2 car garage, boat ramp, private dock, maintenance-free metal roof and loads of storage on Lake Bowen. This home boast panoramic views of the lake at every floor. The main level boast open floor plan with living room/kitchen with island that has French doors that open to a sun room that continues to the deck.
The main floor master suite has a walk-in closet and ceiling fan. The full bath boasts double vanities and an upgraded walk-in shower completed by Bath Fitter. The walk-in laundry can be found right off the full bath and offers lots of storage and washer and dryer will convey.
Right outside from it is additional space that could be converted to another bedroom/rec space. Downstairs has a second living room; an additional bedroom and seller is using the back room with walk-in closet as a third bedroom and they share a full bath. There is another sun room that offers additional storage and entertainment space.
SPN MLS # 287927
Quick Facts
Time on Site
4 years ago
Property Type
Residential
Year Built
1963
Lot Size
7,840 sqft
Price/Sq.Ft.
$203
Property Details
Schools
Features & Amenities
Features:
- Ceiling Fan(s)
- Walk-In Closet(s)
- Laminate Counters
- Bookcases
- Utility Sink
- Open Floorplan
- Split Bedroom Plan
Location & Map
Map View
Loading map...
Additional Information
Basement
- Finished
- Full
- Walk-Out Access
Lot & Land
- Level
- Lake on Lot
- Waterfront
- Water View
- Water Access
- Dock
Primary Suite
- Shower Only
- Walk-in Closet
- Owner on Main Level
Interior Details
- Carpet
- Laminate
- Dishwasher
- Microwave
- Electric Oven
- Built-In Range
- Bonus
- Comb. Living & Din Room
- Guest Accomodations
- Main Fl Master Bedroom
- Sun Room
- Workshop
- Other/See Remarks
- Ceiling Fan(s)
- Walk-In Closet(s)
- Laminate Counters
- Bookcases
- Utility Sink
- Open Floorplan
- Split Bedroom Plan
Parking & Garage
- Attached
- Garage
- Garage Door Opener
- Garage Faces Side
- Workshop in Garage
Exterior Features
- Metal
- Basement
- Garage
- Out Building w/ Elec.
- Out Building w/ Water
- Other/See Remarks
- Extra Pad
- Paved
- Shared
- Paved-Asphalt
- Sprinkler System
- Basement
- Vinyl Siding
- Deck
- Patio
- Screened
- Porch
H O A & Association
Property Overview
- One
- Cottage
Utilities & Systems
- Septic Tank
- Electric
- Multiple Units
- Well
Listing Agent Information
You Might Also Like...
Interested in selling in Lake Bowen?


