



$371,000
1304 Dockyard Lane
About This Property
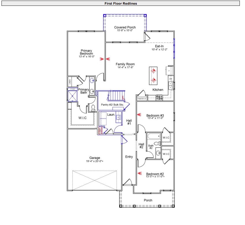
This Elliott is a beautiful Three bedroom, two and a half bathroom home with an open plan featuring luxury vinyl flooring on the main level living areas. The main living area in this space is perfect for entertaining friends and family or hosting those special holidays or get-togethers! The kitchen features dual pantries, quartz countertops, and gas range and matching stainless appliances.
The primary suite on the main level features a walk-in closet, walk-in shower with bench, private water closet, double sinks and framed mirrors. Upstairs is a large rec room, storage closet, and walk out unfinished floored storage. Don’t wait until the best homesites are gone, visit the Cottages at Lake Emory today!
SPN MLS # 332708
Quick Facts
Time on Site
1 month ago
Property Type
Residential
Year Built
2026
Lot Size
8,276 sqft
Price/Sq.Ft.
$170
Property Details
Schools
Features & Amenities
Location & Map
Map View
Loading map...
Additional Information
Basement
Security
- Smoke Detector(s)
Community
- Street Lights
- Dog Park
Lot & Land
- Sloped
Primary Suite
- Bath - Full
- Double Vanity
- Owner on Main Level
- Shower Only
- Walk-in Closet
Interior Details
- Carpet
- Luxury Vinyl
- Dishwasher
- Disposal
- Microwave
- Gas Range
- Range
- Bonus
- Breakfast Area
- Main Fl Master Bedroom
- Tilt-Out
- 1st Floor
- Walk-In
- Ceilings-Some 9 Ft +
- Walk-In Closet(s)
- Ceiling - Smooth
- Solid Surface Counters
- Pantry
- Walk-In Pantry
- Radon Mitigation System
New Construction
Parking & Garage
- 2 Car Attached
- Garage Door Opener
- Garage
Exterior Features
- Architectural
- Attic
- Garage
- Other/See Remarks
- Slab
- Hardboard Siding
- Covered Patio
H O A & Association
- Common Area
- Street Lights
Property Overview
- One
- Ranch
Utilities & Systems
- Public Sewer
- Central Air
- Forced Air
- Gas
- Tankless
- Public
