


$397,000
1252 Dockyard Lane
Inman, SC 29349
About This Property
This Property Has Been Sold
This property sold 3 months ago and is no longer available for purchase.
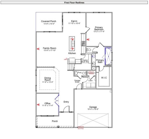
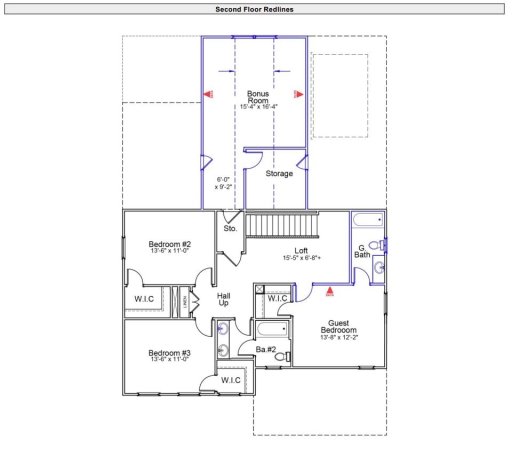
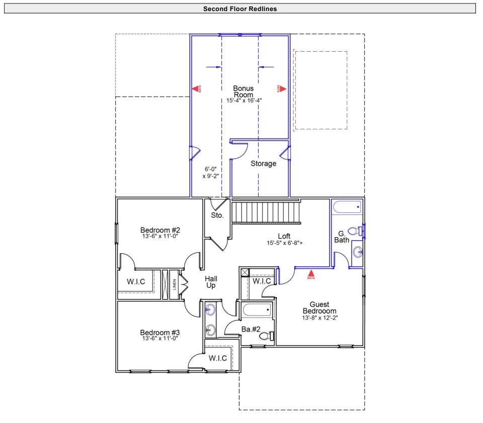
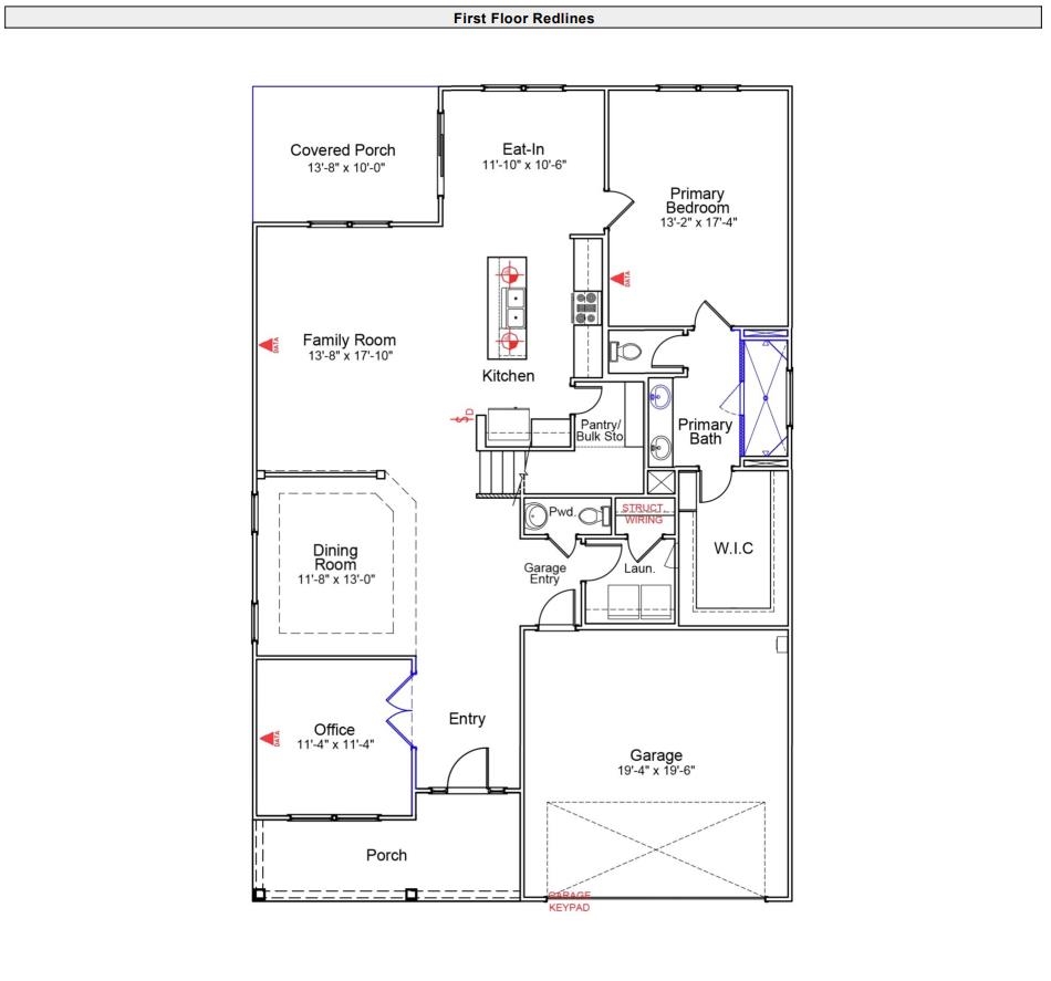
View active listings in The Cottages at Lake Emory →This Peachtree is a beautiful new floorplan boasting four bedrooms, three and a half bathrooms, two-car garage home with an open plan featuring luxury vinyl flooring on the main level living areas. This space is perfect for entertaining friends and family or hosting those special holidays or get-togethers! The kitchen features quartz countertops, and gas stainless appliances in the kitchen.
The primary suite features a walk-in closet, private water closet, walk-in tile shower with two shower heads, and double sink. This amazing lot backs up to community greenspace with beautiful views! Don’t wait until the best homesites are gone, visit the Cottages at Lake Emory today!
SPN MLS # 326979
Quick Facts
Time on Site
8 months ago
Property Type
Residential
Year Built
2026
Lot Size
8,276 sqft
Price/Sq.Ft.
$127
Property Details
Schools
Features & Amenities
Features:
- Ceilings-Some 9 Ft +
- Attic Stairs Pulldown
- Walk-In Closet(s)
- Ceiling - Smooth
- Solid Surface Counters
- Open Floorplan
- Walk-In Pantry
- Radon Mitigation System
Location & Map
Map View
Loading map...
Additional Information
Basement
Security
- Smoke Detector(s)
Community
- Street Lights
- Dog Park
Lot & Land
- Sloped
Primary Suite
- Bath - Full
- Double Vanity
- Owner on Main Level
- Shower Only
- Walk-in Closet
Interior Details
- Carpet
- Luxury Vinyl
- Dishwasher
- Disposal
- Microwave
- Gas Range
- Breakfast Area
- Loft
- Main Fl Master Bedroom
- Office/Study
- Tilt-Out
- 1st Floor
- Walk-In
- Ceilings-Some 9 Ft +
- Attic Stairs Pulldown
- Walk-In Closet(s)
- Ceiling - Smooth
- Solid Surface Counters
- Open Floorplan
- Walk-In Pantry
- Radon Mitigation System
New Construction
Parking & Garage
- 2 Car Attached
- Garage Door Opener
- Garage
- Keypad Entry
Exterior Features
- Architectural
- Attic
- Garage
- Slab
- Hardboard Siding
- Porch
- Covered Patio
H O A & Association
- Common Area
- Street Lights
Property Overview
- Two
- Craftsman
Utilities & Systems
- Public Sewer
- Central Air
- Forced Air
- Gas
- Tankless
- Public
Listing Agent Information
You Might Also Like...
Interested in selling in The Cottages at Lake Emory?


