


$409,000
1248 Dockyard Lane
Inman, SC 29349
About This Property
This Property Has Been Sold
This property sold 4 days ago and is no longer available for purchase.
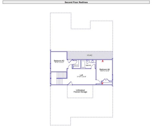
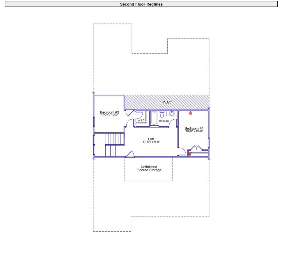
View active listings in The Cottages At Lake Emory →This Hunter is a beautiful four-bedroom, three and a half bathroom, two-car garage home with an open plan featuring luxury vinyl flooring on the main level living areas and upgraded carpet in the bedrooms. This space is perfect for entertaining friends and family or hosting those special holidays or get-togethers! The kitchen features quartz countertops, and gourmet gas stainless cooktop.
There is a beautiful fireplace in the living room that can be seen from the eat-in and kitchen. There are two primary suite on the main level features a walk-in closet, and walk-in shower. Don’t wait until the best homesites are gone, visit the Cottages at Lake Emory today!
SPN MLS # 331392
Quick Facts
Time on Site
4 months ago
Property Type
Residential
Year Built
2026
Lot Size
8,276 sqft
Price/Sq.Ft.
$158
Property Details
Schools
Features & Amenities
Features:
- Ceilings-Some 9 Ft +
- Attic Stairs Pulldown
- Fireplace
- Walk-In Closet(s)
- Ceiling - Smooth
- Solid Surface Counters
- Pantry
- Radon Mitigation System
- Dual Owner’s Bedrooms
Location & Map
Map View
Loading map...
Additional Information
Basement
Security
- Smoke Detector(s)
Community
- Street Lights
- Dog Park
Lot & Land
- Sloped
Primary Suite
- Bath - Full
- Double Vanity
- Owner on Main Level
- Shower Only
- Walk-in Closet
Interior Details
- Carpet
- Ceramic Tile
- Luxury Vinyl
- Electric Cooktop
- Dishwasher
- Disposal
- Microwave
- Electric Oven
- Wall Oven
- Breakfast Area
- Loft
- Main Fl Master Bedroom
- Tilt-Out
- 1st Floor
- Walk-In
- Ceilings-Some 9 Ft +
- Attic Stairs Pulldown
- Fireplace
- Walk-In Closet(s)
- Ceiling - Smooth
- Solid Surface Counters
- Pantry
- Radon Mitigation System
- Dual Owner’s Bedrooms
- Gas Log
New Construction
Parking & Garage
- 2 Car Attached
- Garage Door Opener
- Driveway
- Garage
- Keypad Entry
Exterior Features
- Architectural
- Attic
- Garage
- Slab
- Hardboard Siding
- Patio
- Porch
- Covered Patio
H O A & Association
- Common Area
- Street Lights
Property Overview
- One and One Half
- Craftsman
Utilities & Systems
- Public Sewer
- Central Air
- Forced Air
- Gas
- Tankless
- Public
Listing Agent Information
You Might Also Like...
Interested in selling in The Cottages At Lake Emory?


