

$257,000
12146 Lansbury Drive
Inman, SC 29349
About This Property
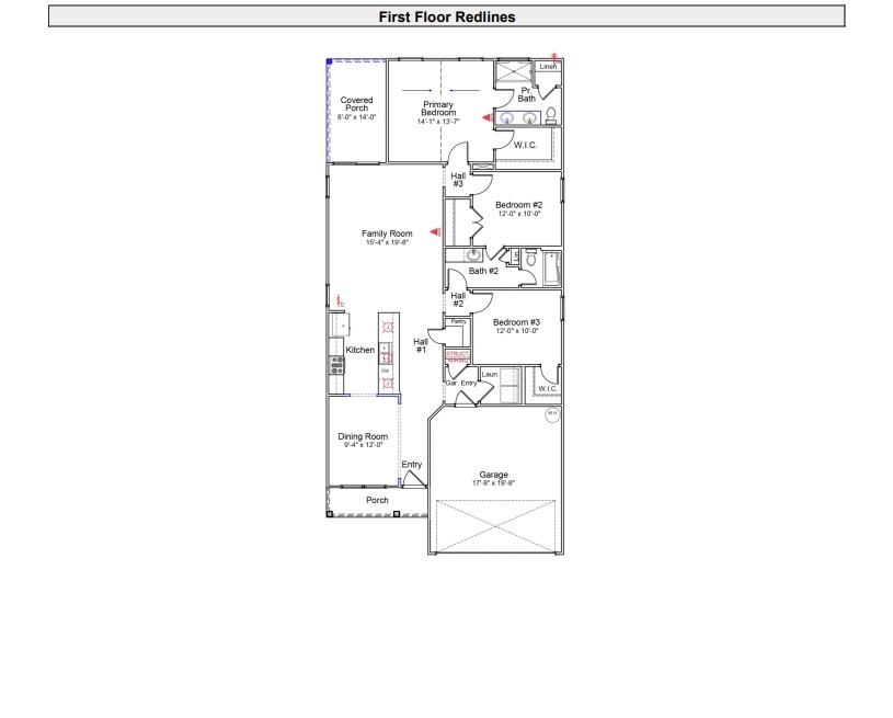
EST COMPLETION APRIL 2, 2026!!!!! Introducing the Brunswick, a luxurious three-bedroom, two-bathroom Ranch residence. The inviting interior features a serene eat-in-area and a beautifully appointed kitchen with upgraded cabinets, Frigidaire stainless steel appliances, and a large quartz-topped island.
The expansive Brunswick great room flows effortlessly onto the expansive covered patio, offering stunning backyard views. The primary bedroom boasts a vaulted ceiling, spacious walk-in closet, and elegantly appointed en-suite bathroom with walk-in shower, dual sinks, and quartz countertops. Two generously sized secondary bedrooms share access to a full bathroom and feature oversized closets.
SPN MLS # 333286
Quick Facts
Time on Site
1 month ago
Property Type
Residential
Year Built
2026
Lot Size
5,227 sqft
Property Details
Schools
Features & Amenities
Features:
- Ceiling Fan(s)
- Ceilings-Some 9 Ft +
- Attic Stairs Pulldown
- Walk-In Closet(s)
- Ceiling - Smooth
- Ceiling - Blown
- Solid Surface Counters
- Open Floorplan
- Pantry
Location & Map
Map View
Loading map...
Additional Information
Basement
Security
- Smoke Detector(s)
Lot & Land
- Sloped
- Some Trees
Primary Suite
- Bath - Full
- Double Vanity
- Owner on Main Level
- Shower Only
- Walk-in Closet
Interior Details
- Carpet
- Luxury Vinyl
- Gas Cooktop
- Dishwasher
- Disposal
- Microwave
- Gas Oven
- Self Cleaning Oven
- Storm Door(s)
- Attic
- Main Fl Master Bedroom
- Tilt-Out
- 1st Floor
- Electric Dryer Hookup
- Walk-In
- Ceiling Fan(s)
- Ceilings-Some 9 Ft +
- Attic Stairs Pulldown
- Walk-In Closet(s)
- Ceiling - Smooth
- Ceiling - Blown
- Solid Surface Counters
- Open Floorplan
- Pantry
New Construction
Parking & Garage
- 2 Car Attached
- Driveway
Exterior Features
- Architectural
- Attic
- Garage
- Paved
- Paved-Concrete
- Aluminum/Vinyl Trim
- Slab
- Vinyl Siding
- Patio
- Covered Patio
H O A & Association
- Common Area
- Street Lights
Property Overview
- One
- Craftsman
Utilities & Systems
- Public Sewer
- Central Air
- Heat Pump
- Gas
- Tankless
- Public


