




$254,000
12110 Lansbury Drive
Inman, SC 29349
About This Property
This Property Has Been Sold
This property sold 7 months ago and is no longer available for purchase.
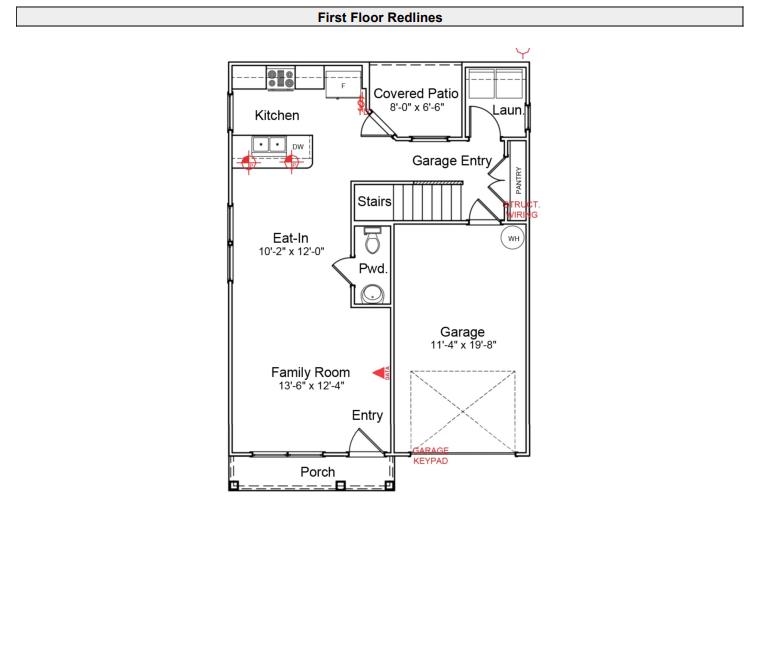
View active listings in Richmond Hill →EST Completion Date 8/20/2025!!!! The Barnwell, a stunning two-story floor plan offering three bedrooms and two-and-one-half bathrooms. Designed for both comfort and convenience.
As you enter, you're welcomed by a spacious great room that effortlessly flows into the eat-in area and kitchen, creating an ideal space for gathering and entertaining. The first floor also features a convenient powder room, a well-appointed laundry room, and access to a charming, covered patio. Upstairs, a versatile loft space connects to the luxurious primary suite, which includes a private bath and a spacious walk-in closet.
Two secondary bedrooms share a second full bathroom, ideally located near the loft. The home also includes a one-car garage and a covered porch, perfect for enjoying the outdoors. This home offers plenty of space both inside and out!
SPN MLS # 323934
Quick Facts
Time on Site
10 months ago
Property Type
Residential
Year Built
2025
Lot Size
4,791 sqft
Price/Sq.Ft.
$186
Property Details
Schools
Features & Amenities
Features:
- Ceiling Fan(s)
- High Ceilings
- Walk-In Closet(s)
- Ceiling - Smooth
- Solid Surface Counters
- Open Floorplan
- Pantry
Location & Map
Map View
Loading map...
Additional Information
Basement
Security
- Smoke Detector(s)
Lot & Land
- Level
Primary Suite
- Bath - Full
- Double Vanity
- Owner on 2nd level
- Shower Only
- Walk-in Closet
Interior Details
- Carpet
- Luxury Vinyl
- Dishwasher
- Disposal
- Microwave
- Gas Range
- Attic
- Breakfast Area
- Loft
- Storm Window(s)
- Tilt-Out
- 1st Floor
- Electric Dryer Hookup
- Walk-In
- Ceiling Fan(s)
- High Ceilings
- Walk-In Closet(s)
- Ceiling - Smooth
- Solid Surface Counters
- Open Floorplan
- Pantry
New Construction
Parking & Garage
- Attached
- Driveway
- Garage
Exterior Features
- Architectural
- Attic
- Garage
- Paved
- Paved-Concrete
- Aluminum/Vinyl Trim
- Slab
- Vinyl Siding
- Porch
- Covered
H O A & Association
- Street Lights
Property Overview
- Two
- Craftsman
Utilities & Systems
- Public Sewer
- Central Air
- Heat Pump
- Gas
- Tankless
- Public
Listing Agent Information
You Might Also Like...
Interested in selling in Richmond Hill?


