




$244,000
12098 Lansbury Drive
Inman, SC 29349
About This Property
This Property Has Been Sold
This property sold 6 months ago and is no longer available for purchase.
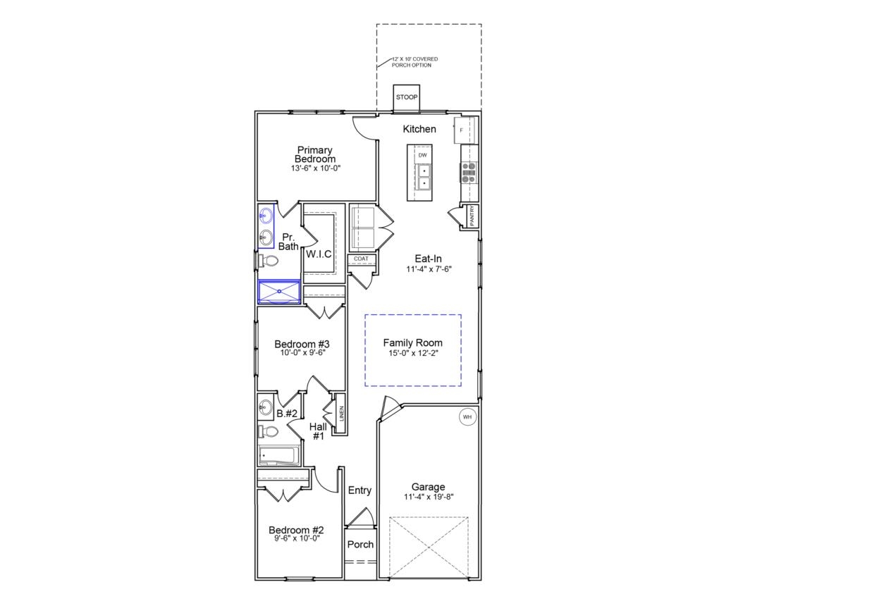
View active listings in Richmond Hill →EST COMPLETION DATE 8/7/2025 Welcome to the Baker! This is a one-story home featuring three bedrooms and two bathrooms. Upon entry, you will find luxury vinyl plank flooring that runs throughout the main areas of the home.
You will notice two bedrooms and a shared bathroom to your right near the entrance. The great room starts with the common areas and flows seamlessly into the eat-in area and kitchen featuring quartz countertops and stainless-steel gas appliances. The primary suite is located off the kitchen and has a private bathroom equipped with a walk-in shower and a spacious walk-in closet.
Off the kitchen, you will find a patio, which overlooks a yard complete with sod, and landscaping.
SPN MLS # 322487
Quick Facts
Time on Site
11 months ago
Property Type
Residential
Year Built
2025
Lot Size
5,227 sqft
Price/Sq.Ft.
$213
Property Details
Schools
Features & Amenities
Features:
- Walk-In Closet(s)
- Ceiling - Smooth
- Solid Surface Counters
- Pantry
Location & Map
Map View
Loading map...
Additional Information
Basement
Security
- Smoke Detector(s)
Lot & Land
- Level
Primary Suite
- Bath - Full
- Double Vanity
- Owner on Main Level
- Shower Only
- Walk-in Closet
Interior Details
- Luxury Vinyl
- Gas Cooktop
- Dishwasher
- Disposal
- Microwave
- Convection Oven
- Gas Oven
- Storm Door(s)
- Attic
- Breakfast Area
- Main Fl Master Bedroom
- Storm Window(s)
- Laundry Closet
- Electric Dryer Hookup
- Walk-In Closet(s)
- Ceiling - Smooth
- Solid Surface Counters
- Pantry
New Construction
Parking & Garage
- Attached
Exterior Features
- Architectural
- Attic
- Garage
- Aluminum/Vinyl Trim
- Slab
- Vinyl Siding
H O A & Association
- Street Lights
Property Overview
- One
- Craftsman
- Ranch
Utilities & Systems
- Public Sewer
- Central Air
- Heat Pump
- Gas
- Tankless
- Public
Listing Agent Information
You Might Also Like...
Interested in selling in Richmond Hill?


