




$272,000
12074 Lansbury Drive
Inman, SC 29349
About This Property
This Property Has Been Sold
This property sold 1 year ago and is no longer available for purchase.
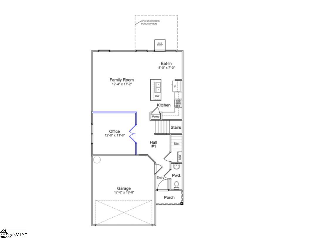
View active listings in Richmond Hills →The Kershaw is a three-bedroom, two-and-one-half-bathroom home featuring an open living area. The kitchen includes stainless steel gas appliances, granite countertops, neutral ashen cabinets, and an island that overlooks the great room. Off the great room is a spacious office.
Luxury vinyl plank flooring runs throughout the main level, adding to the elegant space. Upstairs features a versatile loft space. The primary suite has a large walk-in closet, dual vanity, and 5' walk in shower with glass door.
Two secondary bedrooms, a hall bathroom, and a laundry room complete the second floor.
GVL MLS # 1542652
Quick Facts
Time on Site
1 year ago
Property Type
Residential
Year Built
2024
Lot Size
5,227 sqft
Price/Sq.Ft.
$139
HOA Fees
$315/yr
Property Details
Schools
Features & Amenities
Features:
- High Ceilings
- Ceiling Fan(s)
- Ceiling Smooth
- Open Floorplan
- Walk-In Closet(s)
- Pantry
Location & Map
Map View
Loading map...
Additional Information
Community
- Street Lights
Lot & Land
- 1/2 Acre or Less
Tax Information
Interior Details
- Carpet
- Luxury Vinyl
- Gas Cooktop
- Dishwasher
- Disposal
- Electric Oven
- Microwave
- Tankless Water Heater
- 2nd Floor
- Electric Dryer Hookup
- High Ceilings
- Ceiling Fan(s)
- Ceiling Smooth
- Open Floorplan
- Walk-In Closet(s)
- Pantry
Parking & Garage
- Attached
- Concrete
- Driveway
Exterior Features
- Architectural
- Attached
- Concrete
- Driveway
- Slab
- Patio
- Vinyl Siding
H O A & Association
Property Overview
- Two
- Craftsman
Utilities & Systems
- Public Sewer
- Central Air
- Heat Pump
- Natural Gas
- Public
Listing Agent Information
The information is being provided by Greater Greenville MLS. Information deemed reliable but not guaranteed. Information is provided for consumers' personal, non-commercial use, and may not be used for any purpose other than the identification of potential properties for purchase. Copyright 2025 Greater Greenville MLS. All Rights Reserved.
You Might Also Like...
Interested in selling in Richmond Hills?


