




$292,000
12069 Lansbury Drive
Inman, SC 29349
About This Property
This Property Has Been Sold
This property sold 10 months ago and is no longer available for purchase.
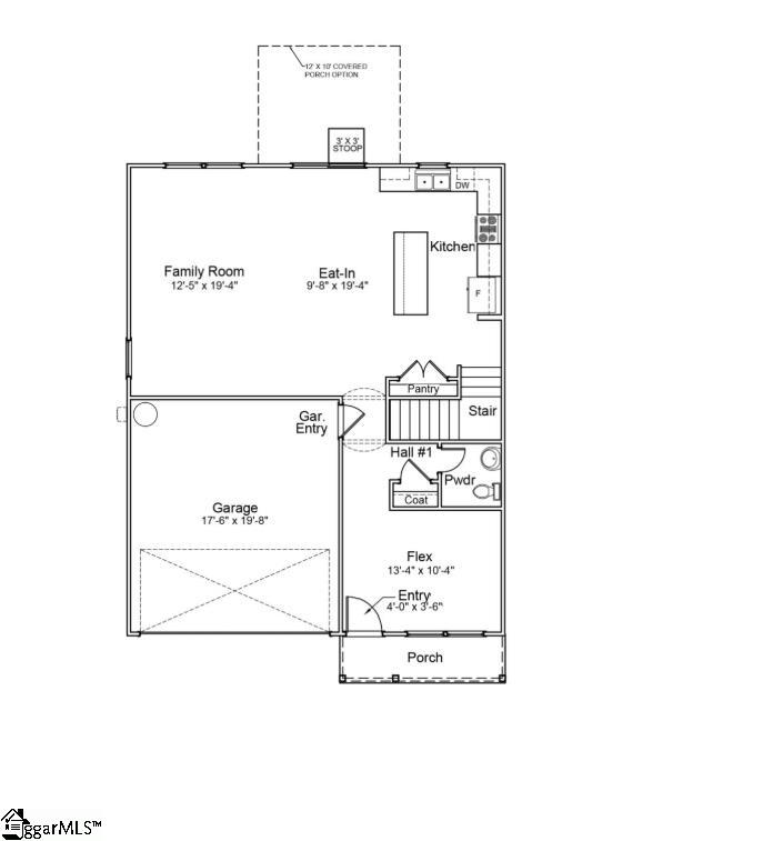
View active listings in Richmond Hills →Welcome home! Step inside this Lancaster home that features a spacious living room and a beautiful kitchen with stainless appliances and granite countertops. Do you need space for a home office, virtual learning center, or craft room?
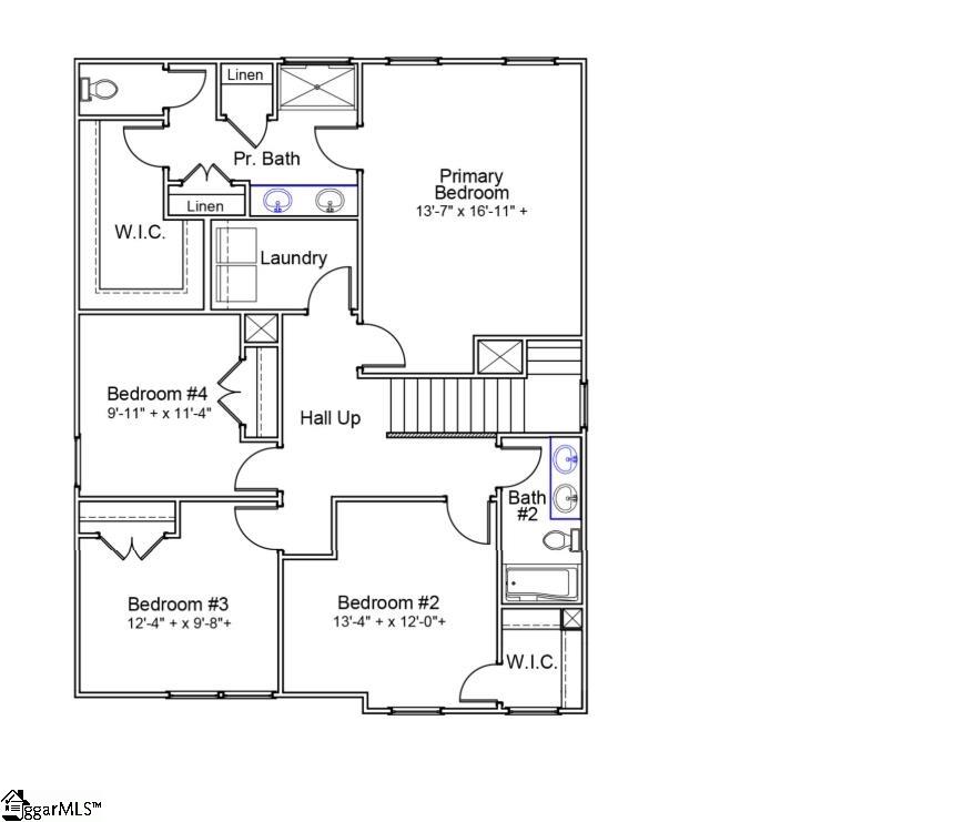
This home has a cozy downstairs flex room, perfect for a number of things. Head upstairs and enjoy relaxing in the oversized primary suite, which also boasts a large walk-in closet. Three additional spacious bedrooms and a full bathroom make this home a must-see.
Last but certainly not least, head outside and enjoy your morning cup of coffee on the 10x12 concrete patio! You will love not only this home, but also the community, which feature beautiful natural surroundings, and the convenience of being near all of your favorite places. The local target and Walmart are a short 10 minute drive.
GVL MLS # 1542937
Quick Facts
Time on Site
1 year ago
Property Type
Residential
Year Built
2024
Lot Size
4,791 sqft
Price/Sq.Ft.
$135
HOA Fees
$315/yr
Property Details
Schools
Features & Amenities
Features:
- High Ceilings
- Ceiling Fan(s)
- Ceiling Smooth
- Granite Counters
- Open Floorplan
- Walk-In Closet(s)
- Countertops – Quartz
- Pantry
Location & Map
Map View
Loading map...
Additional Information
Community
- Street Lights
Lot & Land
- 1/2 Acre or Less
Tax Information
Interior Details
- Carpet
- Luxury Vinyl
- Gas Cooktop
- Dishwasher
- Disposal
- Electric Oven
- Microwave
- Gas Water Heater
- 2nd Floor
- Walk-in
- Electric Dryer Hookup
- Laundry Room
- High Ceilings
- Ceiling Fan(s)
- Ceiling Smooth
- Granite Counters
- Open Floorplan
- Walk-In Closet(s)
- Countertops – Quartz
- Pantry
Parking & Garage
- Attached
- Concrete
Exterior Features
- Architectural
- Attached
- Concrete
- Slab
- Patio
- Front Porch
- Vinyl Siding
H O A & Association
- Street Lights
Property Overview
- Two
- Craftsman
Utilities & Systems
- Public Sewer
- Central Air
- Heat Pump
- Public
Listing Agent Information
The information is being provided by Greater Greenville MLS. Information deemed reliable but not guaranteed. Information is provided for consumers' personal, non-commercial use, and may not be used for any purpose other than the identification of potential properties for purchase. Copyright 2025 Greater Greenville MLS. All Rights Reserved.
You Might Also Like...
Interested in selling in Richmond Hills?


