




$242,000
12042 Lansbury Drive
Inman, SC 29349
About This Property
This Property Has Been Sold
This property sold 1 year ago and is no longer available for purchase.
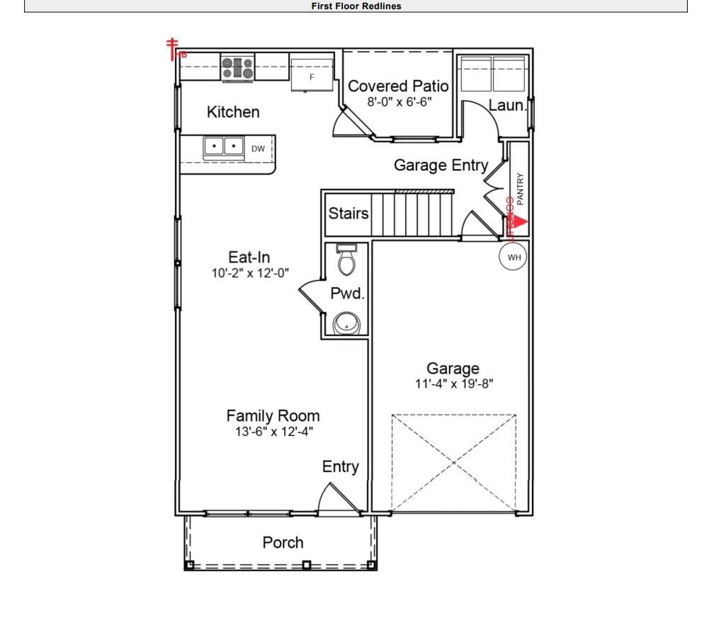
View active listings in Richmond Hill →ESTIMATED COMPLETION DATE MARCH 2025! The Barnwell is a two-story plan featuring three bedrooms and two and one-half bathrooms. Immediately upon entry, you are greeted by the great room which flows seamlessly into the eat-in and kitchen.
A covered patio, laundry room and powder room finish off the first floor. Upstairs you will find the loft space that connects to the primary suite and two secondary bedrooms. The primary suite has a private bathroom and walk-in closet.
The secondary bathroom is conveniently located near the loft space and secondary bedrooms. A one-car garage and covered porch complete this floor plan.
SPN MLS # 316936
Quick Facts
Time on Site
1 year ago
Property Type
Residential
Year Built
2024
Lot Size
4,791 sqft
Price/Sq.Ft.
$177
Property Details
Schools
Features & Amenities
Location & Map
Map View
Loading map...
Additional Information
Basement
Security
- Smoke Detector(s)
Lot & Land
- Level
Primary Suite
- Bath - Full
- Double Vanity
- Owner on 2nd level
- Shower Only
- Walk-in Closet
Interior Details
- Carpet
- Luxury Vinyl
- Dishwasher
- Disposal
- Gas Cooktop
- Convection Oven
- Electric Oven
- Microwave
- Storm Door(s)
- Attic
- Breakfast Area
- Loft
- Storm Window(s)
- 1st Floor
- Electric Dryer Hookup
- Walk-In
- Ceiling Fan(s)
- High Ceilings
- Attic Stairs Pulldown
- Walk-In Closet(s)
- Ceiling - Smooth
- Solid Surface Counters
- Open Floorplan
- Pantry
New Construction
Parking & Garage
- Attached
- Driveway
Exterior Features
- Architectural
- Attic
- Garage
- Aluminum/Vinyl Trim
- Slab
- Vinyl Siding
H O A & Association
- Street Lights
Property Overview
- Two
- Craftsman
Utilities & Systems
- Public Sewer
- Central Air
- Natural Gas
- Gas
- Tankless
- Public
Listing Agent Information
You Might Also Like...
Interested in selling in Richmond Hill?

