


$490,540
1425 Harleston Street
Indian Trail, NC 28079
About This Property
This Property Has Been Sold
This property sold 3 years ago and is no longer available for purchase.
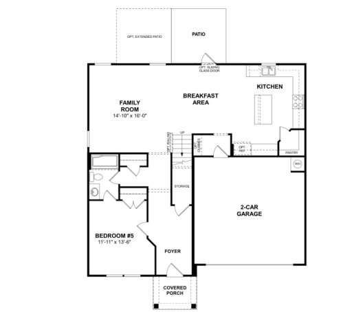
View active listings in Stallings Brook →Immediately inside, a bedroom allows you to set up guests in comfort and privacy. Also on this floor, the family room, kitchen, and breakfast area are laid out in an open-concept design. You’re sure to love the modern elements in the kitchen, including a corner pantry for storage, a center island, and ample countertop and cabinet space.
The breakfast area provides access to the back patio. Additional storage space can be found in the closet underneath the staircase. Upstairs, 3 secondary bedrooms sit on their own side of the home and offer roomy closets and a full bathroom just steps away.
The laundry room's convenient location will allow quick runs to and from any of the bedrooms. Enjoy the flexible space that the loft provides, as you can use this for whatever purpose best suits your needs! The owner’s suite is tucked in its own corner for privacy.
CAR MLS # 116981840
Quick Facts
Time on Site
3 years ago
Property Type
Residential
Year Built
2023
Price/Sq.Ft.
$189
Property Details
Schools
Features & Amenities
Features:
- Attic Stairs Pulldown
- Cable Prewire
- Kitchen Island
- Open Floorplan
- Storage
Location & Map
Map View
Loading map...
Additional Information
Utilities
- Public Sewer
- Cable Available
- Gas
- Wired Internet Available
- City
Lot And Land
Agent Contacts
- Palmetto Park Realty Team Fort Mill: 803.548.6123
Interior Details
- Forced Air
- Natural Gas
- Zoned
- Carpet
- Laminate
- Vinyl
- Insulated Door(s)
- Insulated Window(s)
- Electric Dryer Hookup
- Laundry Room
- Upper Level
- Attic Stairs Pulldown
- Cable Prewire
- Kitchen Island
- Open Floorplan
- Storage
- Carbon Monoxide Detector(s)
- Smoke Detector(s)
Exterior Features
- Fiberglass
- Brick Partial
- Fiber Cement
- Patio
Parking And Garage
- Driveway
- Attached Garage
- Garage Faces Front
Financial Information
Dwelling And Structure
- Traditional
Basement And Foundation
- Slab
Zoning And Restrictions
Square Footage And Levels
- Two
Additional C A R Information
IDX information is provided exclusively for consumers' personal, non-commercial use only; it may not be used for any purpose other than to identify prospective properties consumers may be interested in purchasing. Data is deemed reliable but is not guaranteed accurate by the MLS GRID. Use of this site may be subject to an end user license agreement. Based on information submitted to the MLS GRID as of Tue, Nov 7, 2023. All data is obtained from various sources and may not have been verified by broker or MLS GRID. Supplied Open House Information is subject to change without notice. All information should be independently reviewed and verified for accuracy. Properties may or may not be listed by the office/agent presenting the information. Some IDX listings have been excluded from this website. Any use by you of search facilities of data on the site, other than by a consumer looking to purchase real estate, is prohibited. DMCA Notice: Palmetto Park Realty respects the intellectual property rights of others. If you believe that your work has been copied in a way that constitutes copyright infringement, please provide our designated agent with written notice containing the following information: (1) identification of the copyrighted work claimed to have been infringed; (2) identification of the material that is claimed to be infringing; (3) your contact information; (4) a statement that you have a good faith belief that use of the material is not authorized; and (5) a statement that the information in the notification is accurate and you are authorized to act on behalf of the copyright owner. Please send DMCA notices to: [email protected]
You Might Also Like...
Interested in selling in Stallings Brook?