




$697,608
1119 Bellshill Drive
About This Property
This Property Has Been Sold
This property sold 1 year ago and is no longer available for purchase.
View active listings in Braeburn →March Estimated Completion! Seller will pay up to 6% of sales price in closing cost, prepaids and or rate buy down with approved lender. Beautiful new construction home with a 2- car garage on beautiful homesite.
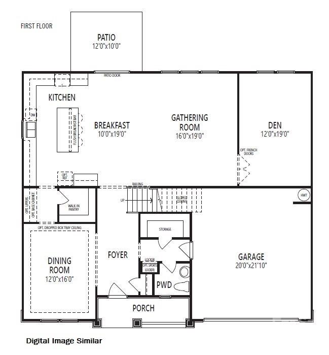
This home has 5 bedrooms and 4 1/2 baths with one bedroom a guest suite on the first floor. The Marshall greets you with a foyer that opens to a formal dining room with walk through butler's pantry to the gourmet kitchen with built-in oven & microwave plus gas range top with overhead range hood. Walk through the foyer and you’ll find the large open gathering room with fireplace and a breakfast room plus sensational sunroom.
The second floor features an owner’s suite with bath oasis, incredible laundry room, a huge loft, three additional bedrooms and 2 more full bathrooms. MLS photos are for Illustration purposes only.
Quick Facts
Time on Site
2 years ago
Property Type
Residential
Year Built
2023
Price/Sq.Ft.
$192
Property Details
Schools
Features & Amenities
Location & Map
Map View
Loading map...
Additional Information
Utilities
- County Sewer
- Cable Available
- Electricity Connected
- Underground Utilities
- Wired Internet Available
- County Water
Lot And Land
Agent Contacts
- Palmetto Park Realty Team Fort Mill: 803.548.6123
Interior Details
- Forced Air
- Natural Gas
- Zoned
- Carpet
- Tile
- Vinyl
- Insulated Window(s)
- Laundry Room
- Upper Level
- Attic Stairs Pulldown
- Cable Prewire
- Drop Zone
- Entrance Foyer
- Garden Tub
- Kitchen Island
- Open Floorplan
- Pantry
- Tray Ceiling(s)
- Walk-In Closet(s)
- Walk-In Pantry
- Smoke Detector(s)
- Family Room
- Gas Log
Exterior Features
- Shingle
- Insulated
- Hardboard Siding
- Stone
- Covered
- Front Porch
- Patio
Parking And Garage
- Attached Garage
Financial Information
Dwelling And Structure
- Tudor
Basement And Foundation
- Slab
Zoning And Restrictions
Square Footage And Levels
- Two
Additional C A R Information
IDX information is provided exclusively for consumers' personal, non-commercial use only; it may not be used for any purpose other than to identify prospective properties consumers may be interested in purchasing. Data is deemed reliable but is not guaranteed accurate by the MLS GRID. Use of this site may be subject to an end user license agreement. Based on information submitted to the MLS GRID as of Wed, May 8, 2024. All data is obtained from various sources and may not have been verified by broker or MLS GRID. Supplied Open House Information is subject to change without notice. All information should be independently reviewed and verified for accuracy. Properties may or may not be listed by the office/agent presenting the information. Some IDX listings have been excluded from this website. Any use by you of search facilities of data on the site, other than by a consumer looking to purchase real estate, is prohibited. DMCA Notice: Palmetto Park Realty respects the intellectual property rights of others. If you believe that your work has been copied in a way that constitutes copyright infringement, please provide our designated agent with written notice containing the following information: (1) identification of the copyrighted work claimed to have been infringed; (2) identification of the material that is claimed to be infringing; (3) your contact information; (4) a statement that you have a good faith belief that use of the material is not authorized; and (5) a statement that the information in the notification is accurate and you are authorized to act on behalf of the copyright owner. Please send DMCA notices to: [email protected]