




$461,990
3167 Beacon Heights Road
Indian Land, SC 29707
About This Property
What's Special: Dedicated Study | 1st Floor Guest Bedroom | 2nd Floor Laundry Room. New Construction - June Completion! Built by America's Most Trusted Home Builder.
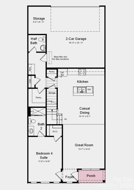
Welcome to the Telluride at 3167 Beacon Heights Road in Ridge at Sugar Creek! This stunning new townhome opens with an inviting, open-concept layout where the great room flows into the bright kitchen with its center island and casual dining area. Just off the kitchen, you’ll find a spacious walk-in pantry, a powder room and the rear garage entry.
A secondary bedroom suite with a walk-in closet and en-suite bath sits conveniently off the great room for added versatility. Upstairs, a dedicated study offers a comfortable place to focus, while two secondary bedrooms with walk-in closets share a full bath and the nearby laundry room. The primary suite completes this level with its relaxing en-suite bath and large walk-in closet.
CAR MLS # 297084325
Quick Facts
Time on Site
14 days ago
Property Type
Residential
Year Built
2026
Price/Sq.Ft.
$194
Property Details
Schools
Features & Amenities
Features:
- Drop Zone
- Kitchen Island
- Open Floorplan
- Pantry
- Split Bedroom
- Walk-In Closet(s)
- Other - See Remarks
Location & Map
Address
3167 Beacon Heights Road, Indian Land, SC 29707
Community
The Ridge At Sugar Creek
Map View
Loading map...
Additional Information
Utilities
- Public Sewer
- Cable Available
- Natural Gas
- Other - See Remarks
- City
Lot And Land
- None
- None
Agent Contacts
- Palmetto Park Realty Team Fort Mill: 803.548.6123
Interior Details
- Natural Gas
- Zoned
- Carpet
- Laminate
- Tile
- French Doors
- Electric Dryer Hookup
- Laundry Room
- Upper Level
- Washer Hookup
- Drop Zone
- Kitchen Island
- Open Floorplan
- Pantry
- Split Bedroom
- Walk-In Closet(s)
- Other - See Remarks
- Carbon Monoxide Detector(s)
- Smoke Detector(s)
Exterior Features
- Architectural Shingle
- Brick Partial
- Fiber Cement
- Metal
- Front Porch
Parking And Garage
- Driveway
- Attached Garage
- Garage Door Opener
- Garage Faces Rear
Financial Information
Dwelling And Structure
- Traditional
Basement And Foundation
- Slab
Zoning And Restrictions
Square Footage And Levels
- Two
Additional C A R Information
- Architectural Review
- Deed
IDX information is provided exclusively for consumers' personal, non-commercial use only; it may not be used for any purpose other than to identify prospective properties consumers may be interested in purchasing. Data is deemed reliable but is not guaranteed accurate by the MLS GRID. Use of this site may be subject to an end user license agreement. Based on information submitted to the MLS GRID as of Mon, Mar 9, 2026. All data is obtained from various sources and may not have been verified by broker or MLS GRID. Supplied Open House Information is subject to change without notice. All information should be independently reviewed and verified for accuracy. Properties may or may not be listed by the office/agent presenting the information. Some IDX listings have been excluded from this website. Any use by you of search facilities of data on the site, other than by a consumer looking to purchase real estate, is prohibited. DMCA Notice: Palmetto Park Realty respects the intellectual property rights of others. If you believe that your work has been copied in a way that constitutes copyright infringement, please provide our designated agent with written notice containing the following information: (1) identification of the copyrighted work claimed to have been infringed; (2) identification of the material that is claimed to be infringing; (3) your contact information; (4) a statement that you have a good faith belief that use of the material is not authorized; and (5) a statement that the information in the notification is accurate and you are authorized to act on behalf of the copyright owner. Please send DMCA notices to: [email protected]


