




$675,000
8020 Garnkirk Drive
Huntersville, NC 28078
About This Property
This Property Has Been Sold
This property sold 6 months ago and is no longer available for purchase.
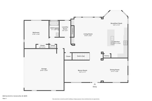
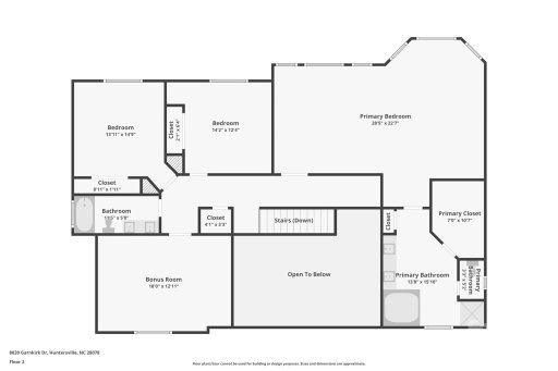
View active listings in Macaulay →RARE OPPORTUNITY All-Brick MacAulay HOME FOR $700,000! Priced to Sell Quick! Impressive 3345 SF 5 bedrooms, 3 full baths, home on a premium level lot with picturesque park views.
Breathtaking two-story great room with a striking feature wall, open floor plan, and professionally painted welcomes all. Flex room with elegant pillars & tray ceiling. Heart of home, a beautifully updated kitchen with new quartz countertops, an expansive breakfast bar, SS glass-top range with direct hood vent, & a new dishwasher.
The kitchen flows effortlessly to the cozy family room, with a fireplace. Main floor bedroom & full bath ideal for guests or multigenerational living. Impressive open staircase to stunning 28x22 primary suite, lighted tray ceiling, private bath, dual sinks, garden tub, separate shower, & Large walk-in closet.
CAR MLS # 287039765
Quick Facts
Time on Site
8 months ago
Property Type
Residential
Year Built
2001
Price/Sq.Ft.
$202
Property Details
Schools
Features & Amenities
Location & Map
Map View
Loading map...
Additional Information
Utilities
- Public Sewer
- City
Lot And Land
- Corner Lot
- Level
- Views
Agent Contacts
- Palmetto Park Realty Team Fort Mill: 803.548.6123
Interior Details
- Central
- Laundry Room
- Main Level
- Family Room
Exterior Features
- In-Ground Irrigation
- Brick Full
- Deck
- Front Porch
Parking And Garage
- Driveway
- Attached Garage
- Garage Door Opener
- Garage Faces Side
Financial Information
Basement And Foundation
- Crawl Space
Zoning And Restrictions
Square Footage And Levels
- Two
Additional C A R Information
IDX information is provided exclusively for consumers' personal, non-commercial use only; it may not be used for any purpose other than to identify prospective properties consumers may be interested in purchasing. Data is deemed reliable but is not guaranteed accurate by the MLS GRID. Use of this site may be subject to an end user license agreement. Based on information submitted to the MLS GRID as of Fri, Dec 12, 2025. All data is obtained from various sources and may not have been verified by broker or MLS GRID. Supplied Open House Information is subject to change without notice. All information should be independently reviewed and verified for accuracy. Properties may or may not be listed by the office/agent presenting the information. Some IDX listings have been excluded from this website. Any use by you of search facilities of data on the site, other than by a consumer looking to purchase real estate, is prohibited. DMCA Notice: Palmetto Park Realty respects the intellectual property rights of others. If you believe that your work has been copied in a way that constitutes copyright infringement, please provide our designated agent with written notice containing the following information: (1) identification of the copyrighted work claimed to have been infringed; (2) identification of the material that is claimed to be infringing; (3) your contact information; (4) a statement that you have a good faith belief that use of the material is not authorized; and (5) a statement that the information in the notification is accurate and you are authorized to act on behalf of the copyright owner. Please send DMCA notices to: [email protected]
You Might Also Like...
Interested in selling in Macaulay?