




$559,588
11445 Prosperity Church Road
Huntersville, NC 28078
About This Property
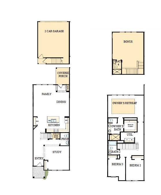
Classic comforts and modern luxuries come together to make this new construction home in North Creek Village a great place to build your future! This stunning end-unit townhome offers the perfect blend of comfort, functionality and modern design.Step inside to an open and airy living space, ideal for entertaining or relaxing at home.
A dedicated downstairs study provides the perfect spot for working from home or a quiet reading space.The heart of the home is a spacious kitchen featuring sleek quartz countertops, ample cabinetry and a large island, perfect for meal prep or gathering with guests. The open-concept layout flows seamlessly into the dining and living areas, filled with natural light thanks to the extra windows only an end unit can offer.
Upstairs, you'll find three well-appointed bedrooms, including a generous Owner’s Retreat with a walk-in closet and a luxurious en-suite bath, your own private haven to unwind.The detached garage with private garage retreat is hard-to-find gem! This versatile space includes a full bathroom and a spacious bonus room, perfect for a guest suite, home gym, studio or specialty space of your dreams.
CAR MLS # 286016325
Quick Facts
Time on Site
7 months ago
Property Type
Residential
Year Built
2025
Price/Sq.Ft.
$255
Property Details
Schools
Features & Amenities
Features:
- Drop Zone
- Kitchen Island
- Open Floorplan
- Pantry
Location & Map
Address
11445 Prosperity Church Road, Huntersville, NC 28078
Community
North Creek Village
Map View
Loading map...
Additional Information
Utilities
- Public Sewer
- City
Lot And Land
- End Unit
Agent Contacts
- Palmetto Park Realty Team Fort Mill: 803.548.6123
Interior Details
- Central
- Natural Gas
- Carpet
- Tile
- Vinyl
- Insulated Window(s)
- Laundry Room
- Drop Zone
- Kitchen Island
- Open Floorplan
- Pantry
Exterior Features
- Architectural Shingle
- Lawn Maintenance
- Fiber Cement
- Stone Veneer
- Covered
- Rear Porch
Parking And Garage
- Detached Garage
Financial Information
Dwelling And Structure
- Advanced Framing
Basement And Foundation
- Slab
Zoning And Restrictions
Square Footage And Levels
- Two
Additional C A R Information
- Exterior Not Connected
- Upper Level Garage
IDX information is provided exclusively for consumers' personal, non-commercial use only; it may not be used for any purpose other than to identify prospective properties consumers may be interested in purchasing. Data is deemed reliable but is not guaranteed accurate by the MLS GRID. Use of this site may be subject to an end user license agreement. Based on information submitted to the MLS GRID as of Sun, Feb 15, 2026. All data is obtained from various sources and may not have been verified by broker or MLS GRID. Supplied Open House Information is subject to change without notice. All information should be independently reviewed and verified for accuracy. Properties may or may not be listed by the office/agent presenting the information. Some IDX listings have been excluded from this website. Any use by you of search facilities of data on the site, other than by a consumer looking to purchase real estate, is prohibited. DMCA Notice: Palmetto Park Realty respects the intellectual property rights of others. If you believe that your work has been copied in a way that constitutes copyright infringement, please provide our designated agent with written notice containing the following information: (1) identification of the copyrighted work claimed to have been infringed; (2) identification of the material that is claimed to be infringing; (3) your contact information; (4) a statement that you have a good faith belief that use of the material is not authorized; and (5) a statement that the information in the notification is accurate and you are authorized to act on behalf of the copyright owner. Please send DMCA notices to: [email protected]