




$408,905
10165 Rainier Trail Drive
Huntersville, NC 28078
About This Property
This Property Has Been Sold
This property sold 3 years ago and is no longer available for purchase.
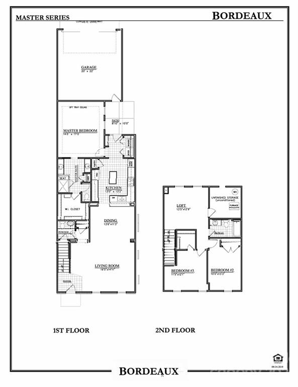
View active listings in The Villas at Tuckers Walk →First Floor Owner's Suite New Construction townhome at The Villas at Tucker's Walk Concord/Huntersville NC, 3 bedroom,2 ½ bath, open concept floor plan. Main level features primary bedroom suite with large walk-in closet, attached bath features two separate vanities, tiled shower with seat, and private water closet. 9 foot ceilings, gourmet kitchen with wall oven, flat cook-top (upgrade option for GAS), dishwasher, Granite countertops with tile backsplash and island.
Second floor host two bedrooms with shared bath and approx. 13.5 ft x 12.
9 ft loft area, prefect for second living space or office. Attached 2 car garage. Lennox gas hot air & air conditioning with Separate HVAC zone for each floor and 50 gallon energy efficient gas water heater.
CAR MLS # 78774940
Quick Facts
Time on Site
3 years ago
Property Type
Residential
Year Built
2023
Lot Size
2,613 sqft
Price/Sq.Ft.
$208
Property Details
Schools
Features & Amenities
Features:
- Cable Prewire
- Entrance Foyer
- Kitchen Island
- Open Floorplan
- Pantry
- Walk-In Closet(s)
Location & Map
Address
10165 Rainier Trail Drive, Huntersville, NC 28078
Community
The Villas at Tuckers Walk
Map View
Loading map...
Additional Information
Utilities
- Public Sewer
- Wired Internet Available
- City
- County Water
Lot And Land
- Level
Agent Contacts
- Palmetto Park Realty Team Fort Mill: 803.548.6123
Interior Details
- Forced Air
- Natural Gas
- Zoned
- Carpet
- Tile
- Wood
- Insulated Door(s)
- Insulated Window(s)
- Electric Dryer Hookup
- Main Level
- Cable Prewire
- Entrance Foyer
- Kitchen Island
- Open Floorplan
- Pantry
- Walk-In Closet(s)
Exterior Features
- Lawn Maintenance
- Brick Partial
- Fiber Cement
- Vinyl
- Patio
Parking And Garage
- Attached Garage
- Garage Faces Rear
Waterfront And View
- None
Financial Information
Dwelling And Structure
- Georgian
- Two or More Access Exits
Basement And Foundation
- Slab
Zoning And Restrictions
Square Footage And Levels
- Two
Additional C A R Information
- Architectural Review
- Signage
- Subdivision
- Use
IDX information is provided exclusively for consumers' personal, non-commercial use only; it may not be used for any purpose other than to identify prospective properties consumers may be interested in purchasing. Data is deemed reliable but is not guaranteed accurate by the MLS GRID. Use of this site may be subject to an end user license agreement. Based on information submitted to the MLS GRID as of Fri, Aug 25, 2023. All data is obtained from various sources and may not have been verified by broker or MLS GRID. Supplied Open House Information is subject to change without notice. All information should be independently reviewed and verified for accuracy. Properties may or may not be listed by the office/agent presenting the information. Some IDX listings have been excluded from this website. Any use by you of search facilities of data on the site, other than by a consumer looking to purchase real estate, is prohibited. DMCA Notice: Palmetto Park Realty respects the intellectual property rights of others. If you believe that your work has been copied in a way that constitutes copyright infringement, please provide our designated agent with written notice containing the following information: (1) identification of the copyrighted work claimed to have been infringed; (2) identification of the material that is claimed to be infringing; (3) your contact information; (4) a statement that you have a good faith belief that use of the material is not authorized; and (5) a statement that the information in the notification is accurate and you are authorized to act on behalf of the copyright owner. Please send DMCA notices to: [email protected]
You Might Also Like...
Interested in selling in The Villas at Tuckers Walk?