




$300,000
344 Bevington Brook Lane
Hopkins, SC 29061
About This Property
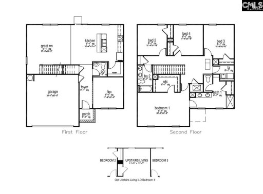
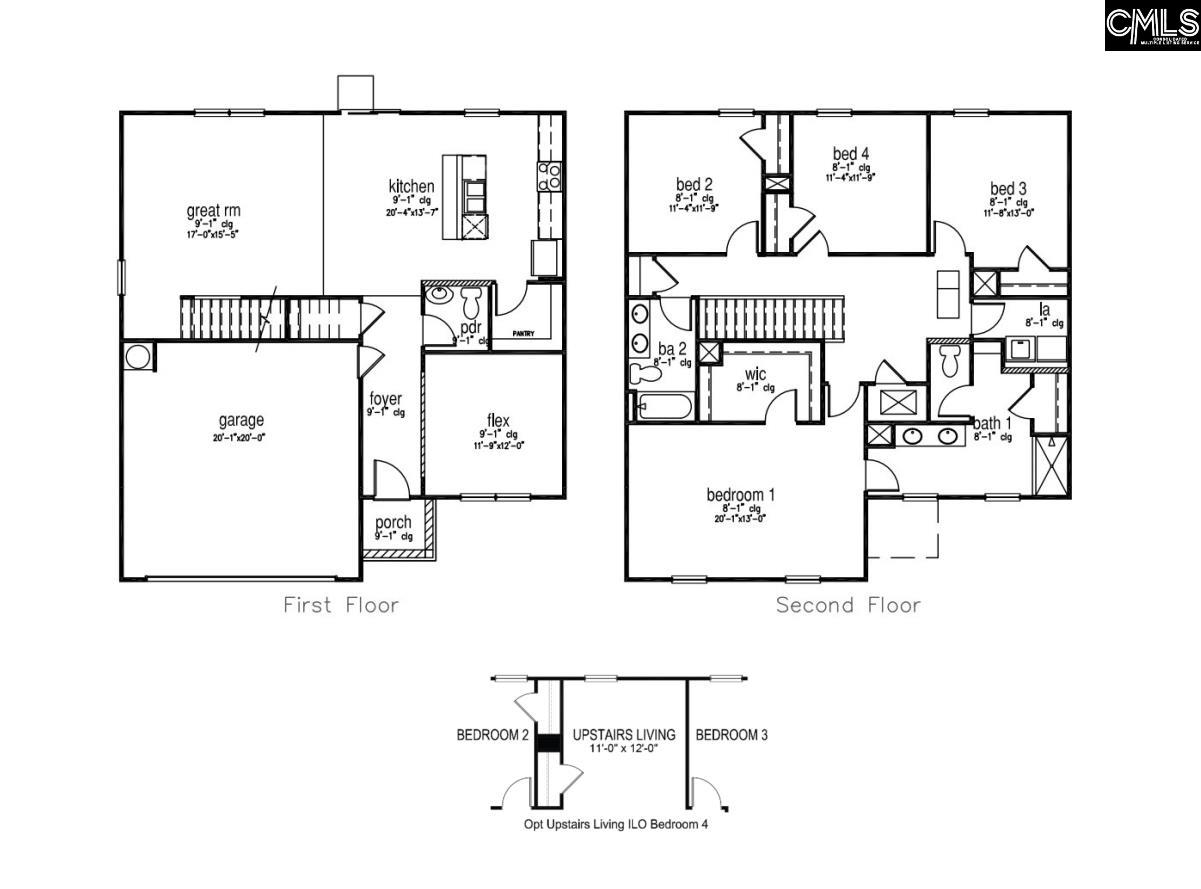
Welcome to 344 Bevington Brook Lane in Hunter's Branch, a new construction home with 2 stories and a covered front porch! This Galen's classic design offers an open concept main first level with an expansive living area. The kitchen, featuring a working island, granite countertops, and an oversized pantry, flows into a casual eating area then into the spacious family room.
An additional flex room on the first floor could be a dedicated home office or even a formal dining room. Upstairs includes a large primary bedroom with expansive bath and generous walk-in closet. The laundry room, conveniently located near the primary bedroom, and three secondary bedrooms complete the second level of this home.
Blinds also come included throughout. Enjoy your outdoor space from your covered front porch and a back patio! The Hunter's Branch community is ideally located nearby Fort Jackson and Downtown Columbia and has a beautiful resort-style pool amenity with a cabana and playground for all residents to enjoy!
COL MLS # 625699
Quick Facts
Time on Site
3 months ago
Property Type
Residential
Year Built
2026
Lot Size
6,098 sqft
Price/Sq.Ft.
$128
Property Details
Schools
Features & Amenities
Features:
- Garage Opener
Location & Map
Map View
Loading map...
Additional Information
Lot & Land
Room Details
- Eat In
- Island
- Pantry
- Counter Tops-Granite
- Floors-Vinyl
- Cabinets-Painted
Miscellaneous
Primary Suite
- Double Vanity
- Bath-Private
- Closet-Walk in
- Floors - Carpet
Interior Details
- Free-standing
- Gas
- Dishwasher
- Microwave Above Stove
- Tankless H20
- Gas Water Heater
Parking & Garage
- Garage Attached
- Front Entry
Exterior Features
- Patio
- Front Porch - Covered
- Brick-Partial-AbvFound
- Vinyl
H O A & Association
- Common Area Maintenance
- Playground
- Pool
Property Overview
Utilities & Systems
- Gas 1st Lvl
- Gas 2nd Lvl
Listing Agent Information
Details provided by Consolidated MLS and may not match the public record. Learn more. The information is being provided by Consolidated Multiple Listing Service, Inc. Information deemed reliable but not guaranteed. Information is provided for consumers' personal, non-commercial use, and may not be used for any purpose other than the identification of potential properties for purchase. © 2025 Consolidated Multiple Listing Service, Inc. All Rights Reserved.


