



$219,000
322 Tartan Road
Hopkins, SC 29061
About This Property
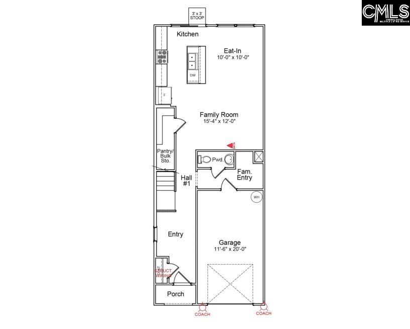
*$5000 in options or up to $8,500 in closing cost with Silverton Mortgage and MGC Law! The Douglas floorplan is a two-story, three-bedroom, two-and-one-half-bathroom home that beautifully combines modern design with everyday comfort. Step through the front door into a bright, open-concept great room, eat-in area, and kitchen featuring stylish stone gray cabinets, elegant Dallas White countertops, and a sleek electric stove—perfect for both cooking and entertaining.
A convenient powder room is tucked away just off the garage entry. Upstairs, the primary suite offers a spacious walk-in closet and a private bathroom complete with a 5-foot fiberglass shower, water closet, and linen closet. The laundry closet is conveniently located just outside the primary suite, with the secondary bedrooms down the hall.
An alternate second-floor layout is available, offering a second primary suite in place of the secondary bedrooms. Come tour this home today in our beautiful Laurinton Farms community! Disclaimer: CMLS has not reviewed and, therefore, does not endorse vendors who may appear in listings.
COL MLS # 620175
Quick Facts
Time on Site
5 months ago
Property Type
Residential
Year Built
2025
Lot Size
3,920 sqft
Price/Sq.Ft.
$132
Property Details
Schools
Features & Amenities
Location & Map
Map View
Loading map...
Additional Information
Lot & Land
Parking & Garage
- Garage Attached
- Front Entry
Exterior Features
H O A & Association
- Common Area Maintenance
- Playground
- Pool
- Street Light Maintenance
Property Overview
Utilities & Systems
Listing Agent Information
Details provided by Consolidated MLS and may not match the public record. Learn more. The information is being provided by Consolidated Multiple Listing Service, Inc. Information deemed reliable but not guaranteed. Information is provided for consumers' personal, non-commercial use, and may not be used for any purpose other than the identification of potential properties for purchase. © 2025 Consolidated Multiple Listing Service, Inc. All Rights Reserved.


