




$224,990
318 Tartan Road
Hopkins, SC 29061
About This Property
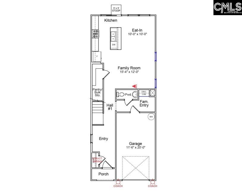
* $5000 in options or up to $8,500 in closing cost with Silverton Mortgage and MGC Law! The Douglas Plan is a two-story, three-bedroom, two-and-one-half-bathroom home that combines style and comfort. Enter through the front door into a spacious open-concept great room, eat-in area, and kitchen featuring elegant stone gray cabinets, stunning Dallas White countertops, and a sleek electric stove perfect for everyday living and entertaining.
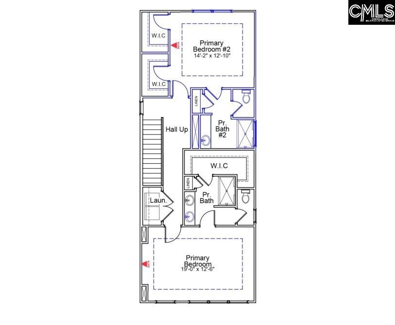
A convenient powder room is tucked away off the garage entry. Upstairs, the primary suite offers a generous walk-in closet and a private bathroom complete with a 5-foot fiberglass shower, water closet, and linen closet. The laundry closet is conveniently located just outside the primary suite, with the secondary bedrooms down the hall.
Come tour this home today in our beautiful Laurinton Farms community! Disclaimer: CMLS has not reviewed and, therefore, does not endorse vendors who may appear in listings.
COL MLS # 620170
Quick Facts
Time on Site
5 months ago
Property Type
Residential
Year Built
2025
Lot Size
3,920 sqft
Price/Sq.Ft.
$137
Property Details
Schools
Features & Amenities
Location & Map
Map View
Loading map...
Additional Information
Lot & Land
Parking & Garage
- Garage Attached
- Front Entry
Exterior Features
H O A & Association
- Common Area Maintenance
- Playground
- Pool
- Sidewalk Maintenance
- Street Light Maintenance
Property Overview
Utilities & Systems
Listing Agent Information
Details provided by Consolidated MLS and may not match the public record. Learn more. The information is being provided by Consolidated Multiple Listing Service, Inc. Information deemed reliable but not guaranteed. Information is provided for consumers' personal, non-commercial use, and may not be used for any purpose other than the identification of potential properties for purchase. © 2025 Consolidated Multiple Listing Service, Inc. All Rights Reserved.


