




$225,000
312 Tartan Road
Hopkins, SC 29061
About This Property
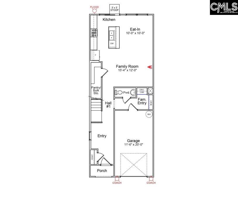
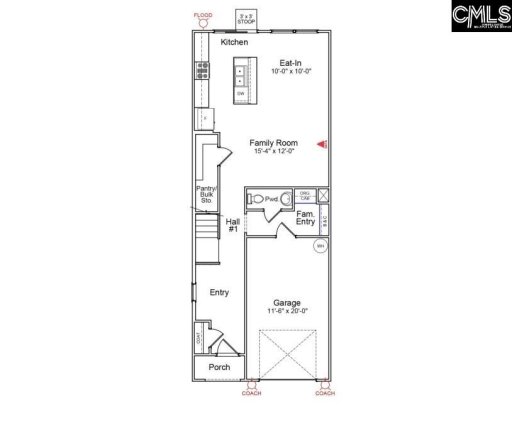
*$5000 in options or up to $8,500 in closing cost with Silverton Mortgage and MGC Law! The Douglas plan is a two-story, three-bedroom, two-and-one-half bathroom home. The first floor features an open floor plan with a powder room, a kitchen island overlooking the great room, and stylish Burlap cabinets paired with Luna Pearl granite countertops.
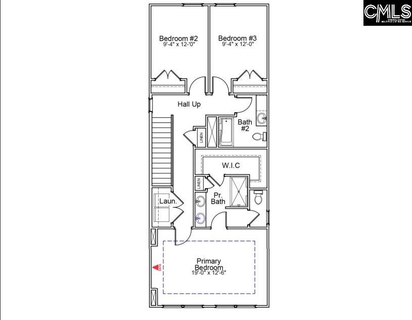
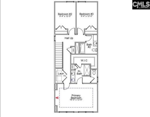
Upstairs, you’ll find the primary suite with two closets, including a spacious walk-in, and a bathroom featuring a 5-foot fiberglass shower, linen closet, and water closet. Two additional bedrooms, a bathroom, and a laundry closet complete the upstairs. This home also includes wood stair treads for added warmth and character.
Available options for this plan include a boxed ceiling in the primary bedroom, a pet pad, and bench with cubbies. Disclaimer: CMLS has not reviewed and, therefore, does not endorse vendors who may appear in listings.
COL MLS # 620166
Quick Facts
Time on Site
5 months ago
Property Type
Residential
Year Built
2025
Lot Size
3,920 sqft
Price/Sq.Ft.
$135
Property Details
Schools
Features & Amenities
Location & Map
Map View
Loading map...
Additional Information
Lot & Land
Parking & Garage
- Garage Attached
- Front Entry
Exterior Features
H O A & Association
- Common Area Maintenance
- Playground
- Pool
- Sidewalk Maintenance
- Street Light Maintenance
Property Overview
Utilities & Systems
Listing Agent Information
Details provided by Consolidated MLS and may not match the public record. Learn more. The information is being provided by Consolidated Multiple Listing Service, Inc. Information deemed reliable but not guaranteed. Information is provided for consumers' personal, non-commercial use, and may not be used for any purpose other than the identification of potential properties for purchase. © 2025 Consolidated Multiple Listing Service, Inc. All Rights Reserved.


