




$224,000
310 Tartan Road
Hopkins, SC 29061
About This Property
* $5000 in options or up to $8,500 in closing cost with Silverton Mortgage and MGC Law. Close to I-77. The Dillon!
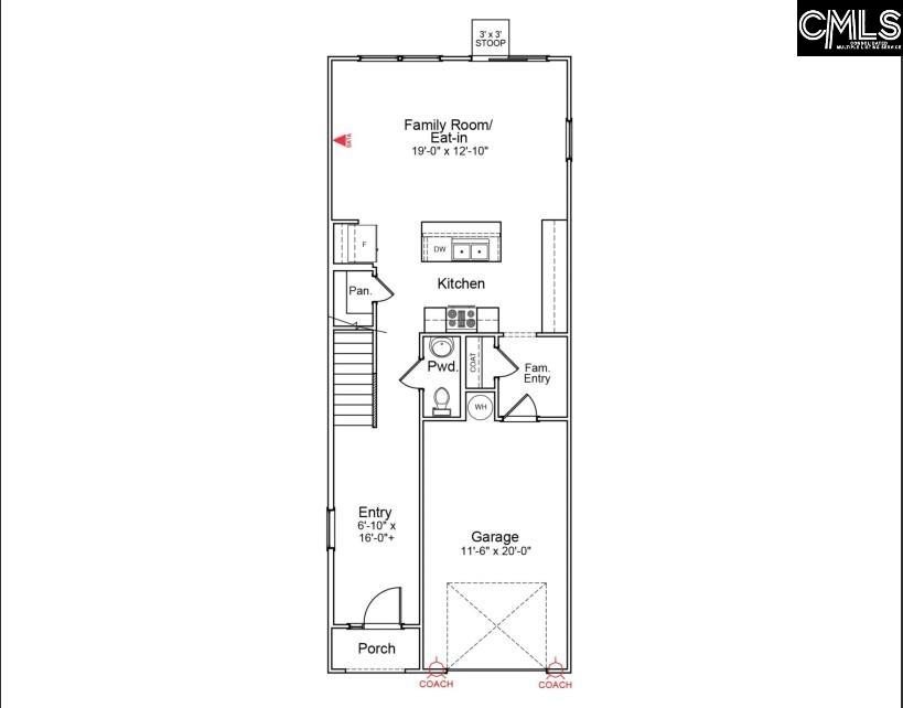
This dual primary home has an open concept layout and is a must see! Luxury vinyl plank flooring runs throughout the common area spaces on the first floor. The kitchen has granite countertops, and stainless steel appliances.
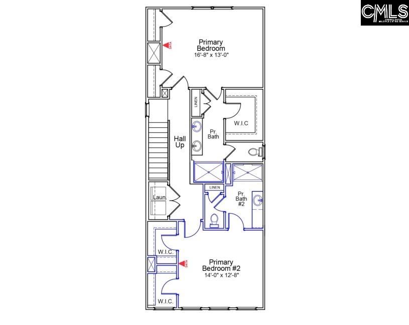
Upstairs, both primary suites have ample closet space! This unique home awaits you, schedule your tour today! Disclaimer: CMLS has not reviewed and, therefore, does not endorse vendors who may appear in listings.
COL MLS # 620195
Quick Facts
Time on Site
5 months ago
Property Type
Residential
Year Built
2025
Lot Size
4,356 sqft
Price/Sq.Ft.
$137
Property Details
Schools
Features & Amenities
Features:
- Smoke Detector
- Attic Pull-Down Access
Location & Map
Map View
Loading map...
Additional Information
Lot & Land
Room Details
- Eat In
- Pantry
- Counter Tops-Quartz
- Ceiling Fan
- Floors-Luxury Vinyl Plank
Primary Suite
- Double Vanity
- Separate Shower
- Closet-Walk in
Interior Details
- Free-standing
- Gas
- Dishwasher
- Disposal
- Microwave Above Stove
- Tankless H20
- Gas Water Heater
- Smoke Detector
- Attic Pull-Down Access
Parking & Garage
- Garage Attached
- Front Entry
Exterior Features
- Sprinkler
- Front Porch - Covered
- Back Porch - Uncovered
- Stone
- Vinyl
H O A & Association
- Common Area Maintenance
- Sidewalk Maintenance
- Street Light Maintenance
Property Overview
Utilities & Systems
- Central
- Gas 1st Lvl
- Gas 2nd Lvl
Listing Agent Information
Details provided by Consolidated MLS and may not match the public record. Learn more. The information is being provided by Consolidated Multiple Listing Service, Inc. Information deemed reliable but not guaranteed. Information is provided for consumers' personal, non-commercial use, and may not be used for any purpose other than the identification of potential properties for purchase. © 2025 Consolidated Multiple Listing Service, Inc. All Rights Reserved.


