




$230,000
308 Tartan Road
Hopkins, SC 29061
About This Property
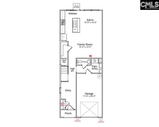
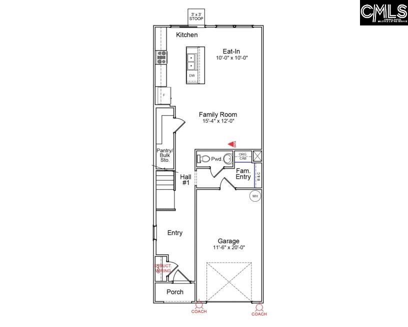
*$11,500 in options or up to $15,000 in closing cost with Silverton Mortgage and MGC Law. Located in the sought-after Laurinton Farms community, this Douglas floor plan offers stylish, upgraded living in a beautifully designed two-story single-family home. The open-concept kitchen features crisp white cabinetry paired with Luna Pearl granite countertops, a spacious island, brushed satin nickel hardware, and a classic white glossy subway tile backsplash in an offset pattern.
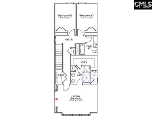
Crown molding adds a sophisticated touch throughout. Oyster Oak luxury vinyl plank flooring flows seamlessly through the main areas including the kitchen, eat-in area, family room, entry, laundry, pantry, and baths offering both durability and warmth. Upstairs, plush Alcot Way Concrete carpet softens the bedrooms and hallways, creating a cozy retreat.
The primary boasts raised vanities with quartz counters, a boxed ceiling detail, and a beautifully tiled walk-in shower with glass bypass doors for a spa-like finish. This home blends timeless design with modern upgrades, perfect for those seeking comfort, style, and quality craftsmanship. Don’t miss your chance to own this stunning home schedule your private tour today and experience Laurinton Farms living at its finest!
COL MLS # 620161
Quick Facts
Time on Site
6 months ago
Property Type
Residential
Year Built
2025
Lot Size
6,098 sqft
Price/Sq.Ft.
$140
Property Details
Schools
Features & Amenities
Location & Map
Map View
Loading map...
Additional Information
Laundry
Lot & Land
Room Details
- Bar
- Pantry
- Backsplash-Tiled
- Cabinets-Painted
- Recessed Lights
- Counter Tops-Quartz
- Floors-Luxury Vinyl Plank
- Ceiling Fan
- Floors-Luxury Vinyl Plank
Interior Details
- Dishwasher
- Disposal
- Microwave Above Stove
Parking & Garage
- Garage Attached
- Front Entry
Exterior Features
- Stone
- Vinyl
H O A & Association
- Common Area Maintenance
- Playground
- Pool
- Sidewalk Maintenance
- Street Light Maintenance
Property Overview
Utilities & Systems
- Central
- Heat Pump 2nd Lvl
- Split System
- Zoned
- Gas 1st Lvl
- Heat Pump 2nd Lvl
- Split System
- Zoned
Listing Agent Information
Details provided by Consolidated MLS and may not match the public record. Learn more. The information is being provided by Consolidated Multiple Listing Service, Inc. Information deemed reliable but not guaranteed. Information is provided for consumers' personal, non-commercial use, and may not be used for any purpose other than the identification of potential properties for purchase. © 2025 Consolidated Multiple Listing Service, Inc. All Rights Reserved.


