




$232,000
302 Tartan Road
Hopkins, SC 29061
About This Property
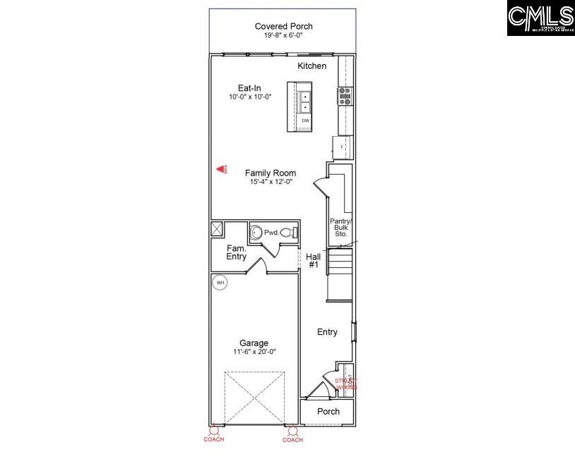
* $5000 in options or up to $8,500 in closing cost with Silverton Mortgage and MGC Law. Located in the sought-after Laurinton Farms community, this Douglas floor plan offers stylish, upgraded living in a beautifully designed two-story single-family home. The open-concept kitchen features Stone Gray Elkins Pure Style cabinetry with Miami Vena quartz countertops, a spacious island, brushed satin nickel hardware, and a classic white glossy subway tile backsplash in an offset pattern.
Crown molding adds a sophisticated touch. Luxury Driftwood vinyl plank flooring runs throughout the main areas, including the kitchen, eat-in area, family room, entry, laundry, pantry, and baths. Plush Alcot Way Concrete carpet softens the upstairs bedrooms and hallways.
The primary suite boasts raised vanities with quartz counters, a large 5' fiberglass shower, boxed ceiling detail, and glass bypass shower doors for a spa-like finish. Disclaimer: CMLS has not reviewed and, therefore, does not endorse vendors who may appear in listings.
COL MLS # 620164
Quick Facts
Time on Site
5 months ago
Property Type
Residential
Year Built
2025
Lot Size
3,920 sqft
Price/Sq.Ft.
$140
Property Details
Schools
Features & Amenities
Location & Map
Map View
Loading map...
Additional Information
Lot & Land
Parking & Garage
- Garage Attached
- Front Entry
Exterior Features
H O A & Association
- Common Area Maintenance
- Playground
- Pool
- Sidewalk Maintenance
Property Overview
Utilities & Systems
Listing Agent Information
Details provided by Consolidated MLS and may not match the public record. Learn more. The information is being provided by Consolidated Multiple Listing Service, Inc. Information deemed reliable but not guaranteed. Information is provided for consumers' personal, non-commercial use, and may not be used for any purpose other than the identification of potential properties for purchase. © 2025 Consolidated Multiple Listing Service, Inc. All Rights Reserved.


