




$273,020
216 Laurinton Farms Drive
Hopkins, SC 29061
About This Property
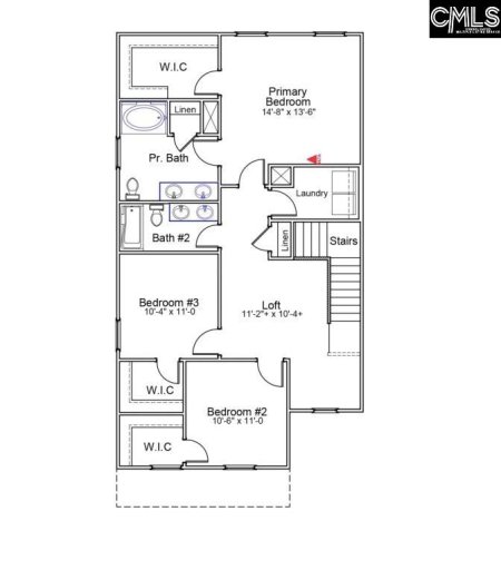
*$11,500 in options or $15,000 in closing cost with our partner lender!! This three bedroom, two and one half bathroom home features an open living area, designated office space and a modern kitchen! Upstairs, a spacious loft provides extra living space.
The primary suite includes an ensuite bathroom and walk-in closet, while two additional bedrooms share a full bathroom. A covered back porch offers a perfect outdoor retreat. This home blends functionality with comfort, offering both private and shared spaces for modern living.
Schedule your tour today! Disclaimer: CMLS has not reviewed and, therefore, does not endorse vendors who may appear in listings.
COL MLS # 629310
Quick Facts
Time on Site
1 month ago
Property Type
Residential
Year Built
2025
Lot Size
5,227 sqft
Price/Sq.Ft.
$139
Property Details
Schools
Features & Amenities
Features:
- Smoke Detector
- Attic Pull-Down Access
Location & Map
Map View
Loading map...
Additional Information
Laundry
Lot & Land
Room Details
- Eat In
- Pantry
- Counter Tops-Granite
- Cabinets-Painted
- Floors-Luxury Vinyl Plank
Miscellaneous
Primary Suite
- Double Vanity
- Closet-Walk in
- Tub-Shower
Interior Details
- Free-standing
- Gas
- Self Clean
- Dishwasher
- Disposal
- Microwave Above Stove
- Tankless H20
- Smoke Detector
- Attic Pull-Down Access
Parking & Garage
- Garage Attached
- Front Entry
Exterior Features
- Sprinkler
- Front Porch - Covered
- Back Porch - Covered
- Brick-Partial-AbvFound
- Vinyl
H O A & Association
- Common Area Maintenance
- Sidewalk Maintenance
- Street Light Maintenance
Property Overview
Utilities & Systems
Listing Agent Information
Details provided by Consolidated MLS and may not match the public record. Learn more. The information is being provided by Consolidated Multiple Listing Service, Inc. Information deemed reliable but not guaranteed. Information is provided for consumers' personal, non-commercial use, and may not be used for any purpose other than the identification of potential properties for purchase. © 2025 Consolidated Multiple Listing Service, Inc. All Rights Reserved.


