




$230,000
199 Laurinton Farms Drive
Hopkins, SC 29061
About This Property
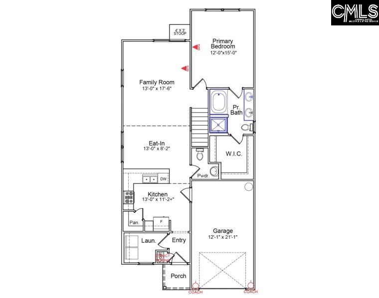
*Get up to $10K in closing cost with our partner lender plus blinds and fridge!! The Evans our Primary on main floorplan! Featuring four bedrooms and two and one-half bathrooms.
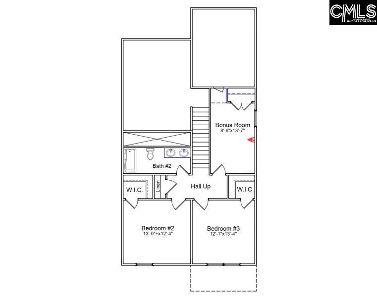
The kitchen includes granite countertops, and stainless steel appliances. Just off the family room is the primary suite with a dual vanity and large walk-in closet. Upstairs, there are three secondary bedrooms that share a hall bathroom.
Disclaimer: CMLS has not reviewed and, therefore, does not endorse vendors who may appear in listings.
COL MLS # 620167
Quick Facts
Time on Site
5 months ago
Property Type
Residential
Year Built
2025
Lot Size
4,791 sqft
Price/Sq.Ft.
$135
Property Details
Schools
Features & Amenities
Location & Map
Map View
Loading map...
Additional Information
Lot & Land
Room Details
- Eat In
- Pantry
- Counter Tops-Granite
- Ceiling Fan
- Floors-Luxury Vinyl Plank
Primary Suite
- Double Vanity
- Tub-Garden
- Separate Shower
- Closet-Walk in
Interior Details
- Free-standing
- Gas
- Dishwasher
- Disposal
- Gas Water Heater
- Microwave Above Stove
- Tankless H20
Parking & Garage
- Garage Attached
- Front Entry
Exterior Features
- Patio
- Front Porch - Covered
H O A & Association
- Common Area Maintenance
- Sidewalk Maintenance
- Street Light Maintenance
Property Overview
Utilities & Systems
- Central
- Gas 1st Lvl
- Gas 2nd Lvl
Listing Agent Information
Details provided by Consolidated MLS and may not match the public record. Learn more. The information is being provided by Consolidated Multiple Listing Service, Inc. Information deemed reliable but not guaranteed. Information is provided for consumers' personal, non-commercial use, and may not be used for any purpose other than the identification of potential properties for purchase. © 2025 Consolidated Multiple Listing Service, Inc. All Rights Reserved.


