




$215,000
191 Laurinton Farms Drive
Hopkins, SC 29061
About This Property
*Get up to $10K in closing cost with our partner lender!! Close to Shaw Air Base. The Bartow!
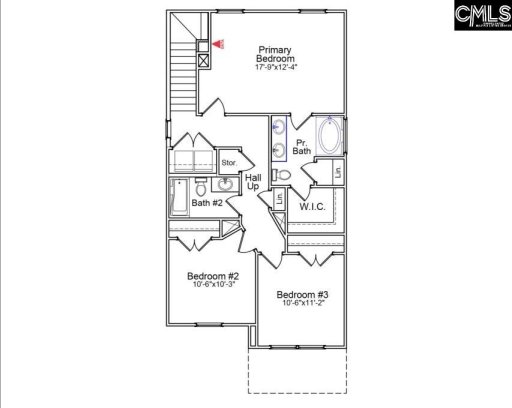
This three bedroom, two and one-half bathroom home has an open concept layout. Luxury vinyl plank flooring runs throughout the common area spaces. The kitchen has granite countertops, and stainless steel appliances.
Upstairs, the primary suite has spacious bathroom and large walk-in closet. Two secondary bedrooms, hall bath, and laundry space complete this home. Schedule your tour today!
COL MLS # 620160
Quick Facts
Time on Site
6 months ago
Property Type
Residential
Year Built
2025
Lot Size
4,791 sqft
Price/Sq.Ft.
$146
Property Details
Schools
Features & Amenities
Features:
- Smoke Detector
- Attic Pull-Down Access
Location & Map
Map View
Loading map...
Additional Information
Fireplace
Lot & Land
Room Details
- Eat In
- Pantry
- Counter Tops-Granite
Primary Suite
- Double Vanity
- Closet-Walk in
- Tub-Shower
Interior Details
- Free-standing
- Gas
- Dishwasher
- Disposal
- Microwave Above Stove
- Tankless H20
- Gas Water Heater
- Smoke Detector
- Attic Pull-Down Access
Parking & Garage
- Garage Attached
- Front Entry
Exterior Features
- Patio
- Sprinkler
- Front Porch - Covered
- Back Porch - Uncovered
H O A & Association
- Common Area Maintenance
- Sidewalk Maintenance
- Street Light Maintenance
Property Overview
Utilities & Systems
- Central
- Gas 1st Lvl
- Gas 2nd Lvl
Listing Agent Information
Details provided by Consolidated MLS and may not match the public record. Learn more. The information is being provided by Consolidated Multiple Listing Service, Inc. Information deemed reliable but not guaranteed. Information is provided for consumers' personal, non-commercial use, and may not be used for any purpose other than the identification of potential properties for purchase. © 2025 Consolidated Multiple Listing Service, Inc. All Rights Reserved.


