




$499,900
2058 Mcguire Lane 015
Hollywood, SC 29449
About This Property
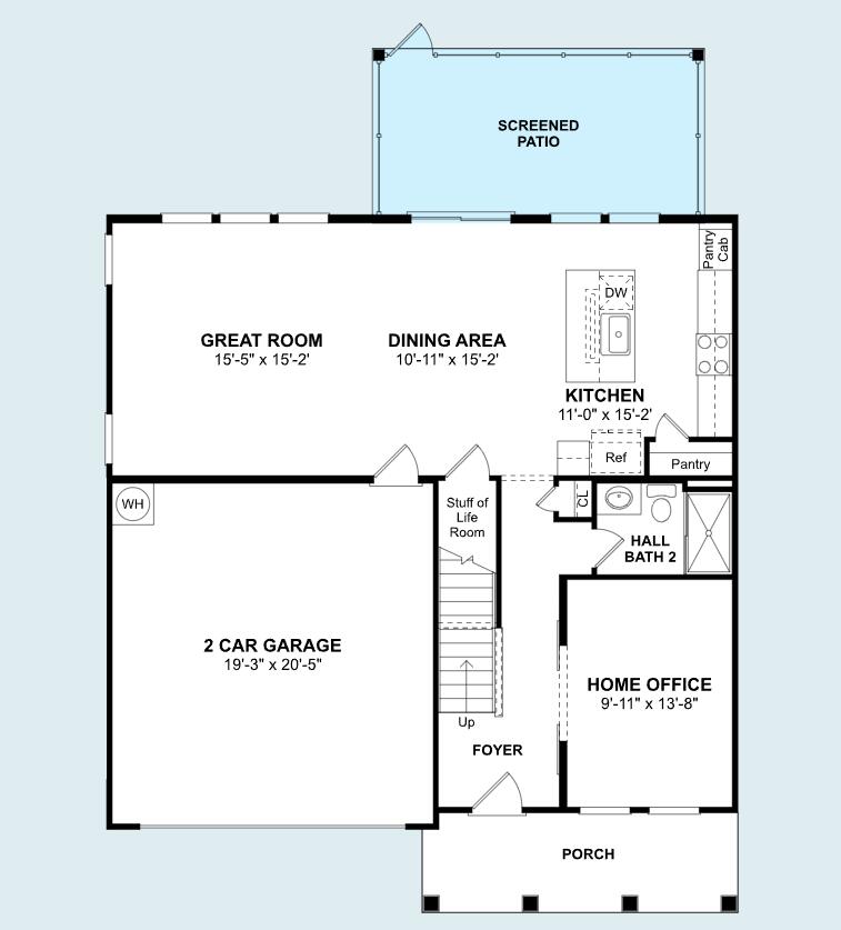
Welcome to the Fayetteville floorplan on Homesite 15 in Stono Village, a thoughtfully designed two-story home offering 3 bedrooms, 3 full baths, and 2,307 sq ft of beautifully curated living space, designed with our sophisticated Loft palette.Step into an airy, open-concept main floor where white kitchen cabinets, a stunning waterfall island, and modern finishes create a clean, elevated look. Entertain effortlessly with 12-foot sliding glass doors that lead to a screened porch, blending indoor and outdoor living and offering the perfect place to unwind.
Upstairs, the spacious layout continues with ample room for relaxing, working, or hosting. Every detail of this home is designed to balance style, function, and comfort. Closing December!
Quick Facts
Time on Site
8 months ago
Property Type
Residential
Year Built
2025
Lot Size
6,969 sqft
Property Details
Schools
Features & Amenities
Location & Map
Map View
Loading map...
Additional Information
Lot And Land
Agent Contacts
Room Dimensions
Property Details
Exterior Features
Interior Features
Systems & Utilities
Financial Information
Additional Information
- IDX
- -80.167526
- 32.761429
- Slab


