




$409,900
975 1st Street
Hickory, NC 28601
About This Property
This Property Has Been Sold
This property sold 1 year ago and is no longer available for purchase.
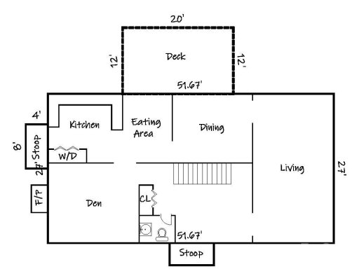
View active listings in Combford Park →Nestled in the heart of the Viewmont/Hickory area! This home offers lots of charm & quality craftsmanship over its 2701sqft of living space. A welcoming foyer w/convenient half bath introduces you to the elegance within, leading to a grand formal living rm, a sep.
formal dining rm, & a den complete w/built-ins & a FP (gas logs do not work) that sets the scene for memorable gatherings. The spacious kitchen, adorned w/ample cabinet space, incs. a breakfast nook & a washer/dryer closet (w/d stay).
Off the kitchen, venture outside to discover a large deck overlooking the backyard. Upstairs, the primary BR w/an adjoining full bth (sep. dr to hallway), alongside 3 additional large BRs & another full bth, offer comfortable living.
CAR MLS # 217716997
Quick Facts
Time on Site
2 years ago
Property Type
Residential
Year Built
1972
Price/Sq.Ft.
$152
Property Details
Schools
Features & Amenities
Features:
- Attic Stairs Pulldown
- Built-in Features
- Entrance Foyer
Location & Map
Map View
Loading map...
Additional Information
Utilities
- Public Sewer
- Electricity Connected
- Gas
- City
Lot And Land
- Level
- Sloped
- Other - See Remarks
Agent Contacts
- Palmetto Park Realty Team Fort Mill: 803.548.6123
Interior Details
- Forced Air
- Natural Gas
- Carpet
- Vinyl
- Sliding Doors
- Storm Door(s)
- Electric Dryer Hookup
- In Kitchen
- Inside
- Laundry Closet
- Main Level
- Attic Stairs Pulldown
- Built-in Features
- Entrance Foyer
- Den
- Other - See Remarks
Exterior Features
- Shingle
- Brick Partial
- Shingle/Shake
- Deck
- Front Porch
Parking And Garage
- Basement
- Attached Carport
- Driveway
- Garage Faces Rear
Waterfront And View
- None
Financial Information
Basement And Foundation
- Basement Shop
- Daylight
- Exterior Entry
- Full
- Interior Entry
- Unfinished
- Walk-Out Access
- Basement
Zoning And Restrictions
Square Footage And Levels
- Two
Additional C A R Information
IDX information is provided exclusively for consumers' personal, non-commercial use only; it may not be used for any purpose other than to identify prospective properties consumers may be interested in purchasing. Data is deemed reliable but is not guaranteed accurate by the MLS GRID. Use of this site may be subject to an end user license agreement. Based on information submitted to the MLS GRID as of Mon, Jan 6, 2025. All data is obtained from various sources and may not have been verified by broker or MLS GRID. Supplied Open House Information is subject to change without notice. All information should be independently reviewed and verified for accuracy. Properties may or may not be listed by the office/agent presenting the information. Some IDX listings have been excluded from this website. Any use by you of search facilities of data on the site, other than by a consumer looking to purchase real estate, is prohibited. DMCA Notice: Palmetto Park Realty respects the intellectual property rights of others. If you believe that your work has been copied in a way that constitutes copyright infringement, please provide our designated agent with written notice containing the following information: (1) identification of the copyrighted work claimed to have been infringed; (2) identification of the material that is claimed to be infringing; (3) your contact information; (4) a statement that you have a good faith belief that use of the material is not authorized; and (5) a statement that the information in the notification is accurate and you are authorized to act on behalf of the copyright owner. Please send DMCA notices to: [email protected]
You Might Also Like...
Interested in selling in Combford Park?