




$514,900
829b Wynnshire Drive
About This Property
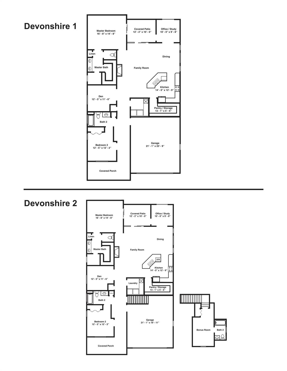
Proposed Construction – Devonshire Floor Plan
Proposed construction in the desirable Wynnshire Ridge community offers the opportunity to build a thoughtfully designed home while still having time to personalize colors and finishes. Located at 829B Wynnshire Drive, Lot 58 features the Devonshire floor plan, providing a spacious and flexible layout designed to support comfort, productivity, and everyday ease.
This home offers 1,940 square feet of well-planned living space with two bedrooms and two full baths, all complemented by an attached two-car garage. The primary bedroom is positioned for privacy and includes an ensuite bath with a walk-in shower and walk-in closet, creating a calming personal retreat. A second bedroom and additional full bath offer flexibility for guests, hobbies, or additional workspace.
Quick Facts
Time on Site
3 weeks ago
Property Type
Residential
Year Built
2026
Price/Sq.Ft.
$265
Property Details
Schools
Features & Amenities
Location & Map
Map View
Loading map...
Additional Information
Utilities
- Public Sewer
- Cable Available
- Natural Gas
- Underground Power Lines
- Underground Utilities
- Wired Internet Available
- City
Lot And Land
- Level
- None
- None
Agent Contacts
- Palmetto Park Realty Team Fort Mill: 803.548.6123
Interior Details
- Forced Air
- Natural Gas
- Carpet
- Hardwood
- Tile
- Sliding Doors
- Insulated Window(s)
- Electric Dryer Hookup
- Main Level
- Attic Stairs Pulldown
- Breakfast Bar
- Entrance Foyer
- Open Floorplan
- Pantry
- Split Bedroom
- Walk-In Closet(s)
- Gas Vented
- Great Room
Exterior Features
- Architectural Shingle
- Lawn Maintenance
- Fiber Cement
- Covered
- Front Porch
- Patio
- Rear Porch
Parking And Garage
- Driveway
- Attached Garage
Waterfront And View
- None
Financial Information
Dwelling And Structure
- Traditional
Basement And Foundation
- Slab
- None
Zoning And Restrictions
Square Footage And Levels
- One
Additional C A R Information
IDX information is provided exclusively for consumers' personal, non-commercial use only; it may not be used for any purpose other than to identify prospective properties consumers may be interested in purchasing. Data is deemed reliable but is not guaranteed accurate by the MLS GRID. Use of this site may be subject to an end user license agreement. Based on information submitted to the MLS GRID as of Tue, Jan 13, 2026. All data is obtained from various sources and may not have been verified by broker or MLS GRID. Supplied Open House Information is subject to change without notice. All information should be independently reviewed and verified for accuracy. Properties may or may not be listed by the office/agent presenting the information. Some IDX listings have been excluded from this website. Any use by you of search facilities of data on the site, other than by a consumer looking to purchase real estate, is prohibited. DMCA Notice: Palmetto Park Realty respects the intellectual property rights of others. If you believe that your work has been copied in a way that constitutes copyright infringement, please provide our designated agent with written notice containing the following information: (1) identification of the copyrighted work claimed to have been infringed; (2) identification of the material that is claimed to be infringing; (3) your contact information; (4) a statement that you have a good faith belief that use of the material is not authorized; and (5) a statement that the information in the notification is accurate and you are authorized to act on behalf of the copyright owner. Please send DMCA notices to: [email protected]