




$560,000
4850 Woodwinds Drive
Hickory, NC 28601
About This Property
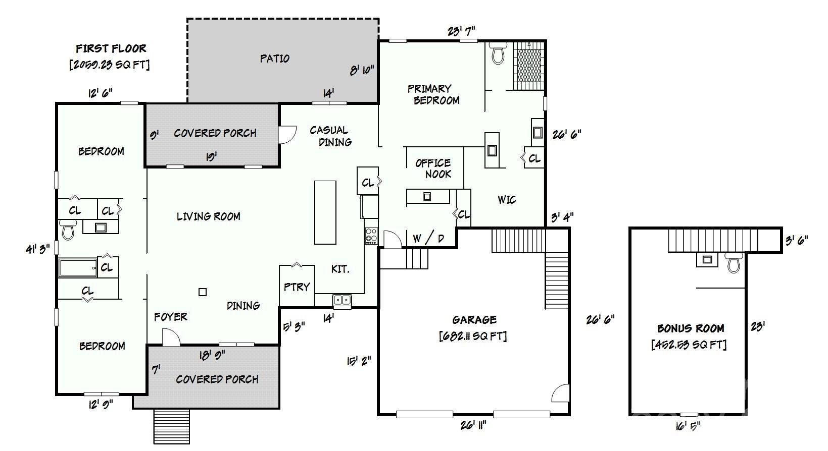
Welcome to your Dream home on the Catawba Springs Golf Course! This stunning 3BR/2.5BA masterpiece offers over 2,000 square feet of living space with another 450 square feet heated/cooled room over the garage.
This house is perfectly situated adjacent to the 7th hole and set on a half-acre lot. The property offers a peaceful and private setting surrounded by mature trees on both sides — the perfect blend of natural beauty and golf course living. Now, Step inside to an open, light-filled floor plan with clean, modern finishes throughout.
The spacious living area flows effortlessly into the dining room and kitchen, creating a welcoming atmosphere ideal for entertaining or relaxing evenings at home. The kitchen is a chef’s delight featuring sleek countertops, ample cabinetry, stainless steel appliances, and an island perfect for casual dining or meal prep. Large windows frame the level backyard that offers privacy and room to garden, play, or entertain while filling the home with natural light.
CAR MLS # 297341082
Quick Facts
Time on Site
10 days ago
Property Type
Residential
Year Built
2021
Price/Sq.Ft.
$272
Property Details
Schools
Features & Amenities
Location & Map
Map View
Loading map...
Additional Information
Utilities
- Public Sewer
- Cable Available
- Electricity Connected
- Underground Power Lines
- City
Lot And Land
- On Golf Course
Agent Contacts
- Palmetto Park Realty Team Fort Mill: 803.548.6123
Interior Details
- Central
- Electric Dryer Hookup
- Utility Room
- Washer Hookup
Exterior Features
- Architectural Shingle
- Brick Partial
- Vinyl
- Covered
Parking And Garage
- Attached Carport
- Driveway
Waterfront And View
- Golf Course
Financial Information
Dwelling And Structure
- Garage Door Height Greater Than 84 inches
Basement And Foundation
- Crawl Space
Zoning And Restrictions
Square Footage And Levels
- 1 Story/F.R.O.G.
Additional C A R Information
- Architectural Review
- Deed
IDX information is provided exclusively for consumers' personal, non-commercial use only; it may not be used for any purpose other than to identify prospective properties consumers may be interested in purchasing. Data is deemed reliable but is not guaranteed accurate by the MLS GRID. Use of this site may be subject to an end user license agreement. Based on information submitted to the MLS GRID as of Sat, Mar 7, 2026. All data is obtained from various sources and may not have been verified by broker or MLS GRID. Supplied Open House Information is subject to change without notice. All information should be independently reviewed and verified for accuracy. Properties may or may not be listed by the office/agent presenting the information. Some IDX listings have been excluded from this website. Any use by you of search facilities of data on the site, other than by a consumer looking to purchase real estate, is prohibited. DMCA Notice: Palmetto Park Realty respects the intellectual property rights of others. If you believe that your work has been copied in a way that constitutes copyright infringement, please provide our designated agent with written notice containing the following information: (1) identification of the copyrighted work claimed to have been infringed; (2) identification of the material that is claimed to be infringing; (3) your contact information; (4) a statement that you have a good faith belief that use of the material is not authorized; and (5) a statement that the information in the notification is accurate and you are authorized to act on behalf of the copyright owner. Please send DMCA notices to: [email protected]