




$899,900
4465 3rd Street
Hickory, NC 28601
About This Property
This Property Has Been Sold
This property sold 11 months ago and is no longer available for purchase.
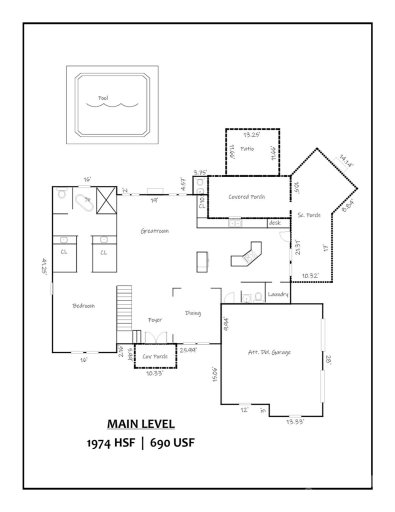
View active listings in Moores Ferry →Welcome to this French country home, where rustic charm meets luxury. As you drive up the cobblestone driveway, you'll immediately feel at home. The stunning foyer leads to both the dining room & great room, which features a soaring stack stone fireplace.
The temperature-controlled wine cellar is perfect for entertaining. The kitchen is equipped w/top-of-the-line appliances. The primary bedroom offers an elegant tray ceiling & a unique brick barrel ceiling above the walk-in closets.
The ensuite bathroom includes dual marble-top vanities, hammered nickel sinks, clawfoot tub, custom curved glass shower door & jewelry closet. Upstairs, you'll find 3 bedrooms, 2 full bathrooms, a loft/office, & a media room. Don't miss the exquisite arched copper screened porch w/gas fireplace.
CAR MLS # 274607700
Quick Facts
Time on Site
1 year ago
Property Type
Residential
Year Built
1995
Price/Sq.Ft.
$239
Property Details
Schools
Features & Amenities
Features:
- Attic Stairs Fixed
- Built-in Features
- Central Vacuum
- Entrance Foyer
- Garden Tub
- Hot Tub
- Kitchen Island
- Walk-In Closet(s)
Location & Map
Map View
Loading map...
Additional Information
Utilities
- Public Sewer
- Cable Connected
- Natural Gas
- City
Lot And Land
- Back Yard
- Fenced
- Partial
- Level
- Private
- Sloped
- Wooded
Pool And Spa
- Fenced
- Heated
- In Ground
- Pool/Spa Combo
- Salt Water
Agent Contacts
- Palmetto Park Realty Team Fort Mill: 803.548.6123
Interior Details
- Forced Air
- Natural Gas
- Carpet
- Stone
- Tile
- Wood
- French Doors
- Laundry Chute
- Laundry Room
- Main Level
- Attic Stairs Fixed
- Built-in Features
- Central Vacuum
- Entrance Foyer
- Garden Tub
- Hot Tub
- Kitchen Island
- Walk-In Closet(s)
- Security System
- Smoke Detector(s)
- Great Room
- Outside
Exterior Features
- Shingle
- Hot Tub
- In-Ground Irrigation
- Outdoor Kitchen
- Outdoor Shower
- Brick Full
- Synthetic Stucco
- Covered
- Front Porch
- Patio
- Screened
- Side Porch
Parking And Garage
- Attached Garage
- Garage Faces Side
- Keypad Entry
Waterfront And View
- Long Range
- Water
- Boat Slip (Deed)
- Covered structure
Financial Information
Dwelling And Structure
- French Provincial
Basement And Foundation
- Crawl Space
Zoning And Restrictions
Square Footage And Levels
- Two
Additional C A R Information
IDX information is provided exclusively for consumers' personal, non-commercial use only; it may not be used for any purpose other than to identify prospective properties consumers may be interested in purchasing. Data is deemed reliable but is not guaranteed accurate by the MLS GRID. Use of this site may be subject to an end user license agreement. Based on information submitted to the MLS GRID as of Thu, Jun 26, 2025. All data is obtained from various sources and may not have been verified by broker or MLS GRID. Supplied Open House Information is subject to change without notice. All information should be independently reviewed and verified for accuracy. Properties may or may not be listed by the office/agent presenting the information. Some IDX listings have been excluded from this website. Any use by you of search facilities of data on the site, other than by a consumer looking to purchase real estate, is prohibited. DMCA Notice: Palmetto Park Realty respects the intellectual property rights of others. If you believe that your work has been copied in a way that constitutes copyright infringement, please provide our designated agent with written notice containing the following information: (1) identification of the copyrighted work claimed to have been infringed; (2) identification of the material that is claimed to be infringing; (3) your contact information; (4) a statement that you have a good faith belief that use of the material is not authorized; and (5) a statement that the information in the notification is accurate and you are authorized to act on behalf of the copyright owner. Please send DMCA notices to: [email protected]
You Might Also Like...
Interested in selling in Moores Ferry?