




$329,900
1767 12th Street Drive
Hickory, NC 28601
About This Property
This Property Has Been Sold
This property sold 2 years ago and is no longer available for purchase.
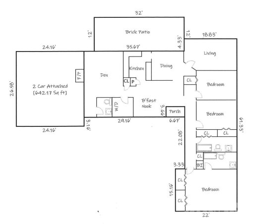
View active listings in Lakeland Park →Nestled in the sought-after NW Hickory area, this well-maintained home is a perfect blend of comfort & convenience. Boasting 3BRs/2 BAs across 2011 htdsqft, this property exudes a warm & inviting atmosphere from the moment you step onto its stunning brick courtyard.The home features a cozy den w/a gaslog FP & access to a private back patio—ideal for unwinding or entertaining.
The bright kitchen, complete w/a brkfast rm & pantry, formal LR, & sep. DR w/patio access, promise ample space for family gatherings. The primary BR is a retreat of its own, offering dual closets & ensuite bath.
Additional features inc. a sep. lndry rm, double garage, & a storage shed.
CAR MLS # 202112523
Quick Facts
Time on Site
2 years ago
Property Type
Residential
Year Built
1972
Price/Sq.Ft.
$164
Property Details
Schools
Features & Amenities
Features:
- Attic Stairs Pulldown
- Entrance Foyer
- Pantry
Location & Map
Map View
Loading map...
Additional Information
Utilities
- Public Sewer
- Gas
- City
Lot And Land
- Level
- Sloped
- Wooded
- Shed(s)
Agent Contacts
- Palmetto Park Realty Team Fort Mill: 803.548.6123
Interior Details
- Other - See Remarks
- Carpet
- Parquet
- Tile
- Vinyl
- Wood
- Laundry Room
- Main Level
- Washer Hookup
- Attic Stairs Pulldown
- Entrance Foyer
- Pantry
- Den
- Gas Log
Exterior Features
- Shingle
- Brick Partial
- Wood
- Covered
- Front Porch
- Patio
Parking And Garage
- Driveway
- Attached Garage
- Garage Door Opener
- Garage Faces Front
Financial Information
Dwelling And Structure
- Ranch
Basement And Foundation
- Exterior Entry
- Partial
- Storage Space
- Sump Pump
- Unfinished
- Walk-Out Access
- Basement
- Crawl Space
Zoning And Restrictions
Square Footage And Levels
- One
Additional C A R Information
IDX information is provided exclusively for consumers' personal, non-commercial use only; it may not be used for any purpose other than to identify prospective properties consumers may be interested in purchasing. Data is deemed reliable but is not guaranteed accurate by the MLS GRID. Use of this site may be subject to an end user license agreement. Based on information submitted to the MLS GRID as of Mon, Jun 3, 2024. All data is obtained from various sources and may not have been verified by broker or MLS GRID. Supplied Open House Information is subject to change without notice. All information should be independently reviewed and verified for accuracy. Properties may or may not be listed by the office/agent presenting the information. Some IDX listings have been excluded from this website. Any use by you of search facilities of data on the site, other than by a consumer looking to purchase real estate, is prohibited. DMCA Notice: Palmetto Park Realty respects the intellectual property rights of others. If you believe that your work has been copied in a way that constitutes copyright infringement, please provide our designated agent with written notice containing the following information: (1) identification of the copyrighted work claimed to have been infringed; (2) identification of the material that is claimed to be infringing; (3) your contact information; (4) a statement that you have a good faith belief that use of the material is not authorized; and (5) a statement that the information in the notification is accurate and you are authorized to act on behalf of the copyright owner. Please send DMCA notices to: [email protected]
You Might Also Like...
Interested in selling in Lakeland Park?