




$527,990
1 Longtown Drive
Hanahan, SC 29410
About This Property
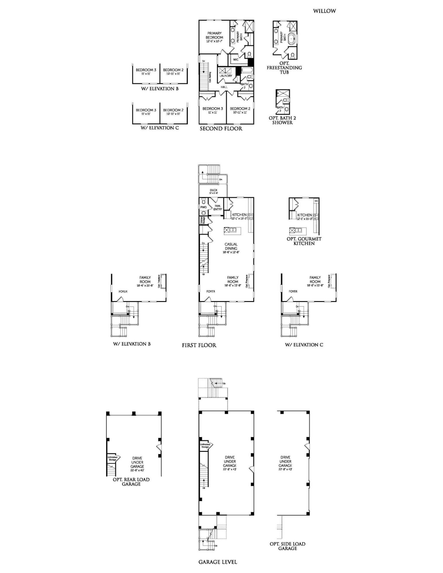
Welcome to Heron Preserve. A boutique community that will soon be filled with vibrant drive under homes with distinct architectural designs. Come visit the unmatched location right across from Bowens Corner Elementary School and the brand new Hawks Nest Park. This park features 6 tennis courts, a sand volleyball court, multipurpose field, artificial turf field, playground, fishing ponds, basketball court, two baseball/softball fields and pavilion. Dream Finders homes come with a plethora of design features to choose from. There is an extensive included features sheet in the photo section for you to view.Introducing the Willow floorplan. Upon entry you are greeted by a spacious foyer and Family room. This downstairs is a true open concept floorplan. The family room flows right into the dining and the dining into the kitchen. The kitchen is at the back of this home and includes plenty of cabinet space and a spacious 7' kitchen island that overlooks the dining and family room. At the rear is a Rear foyer where you can create a spacious drop zone/mud room area. There is both a coat closet downstairs along with an extra storage closet. Upstairs you will find 3 bedrooms including the Primary Bedroom. The Primary Bedroom includes a 5' Tiled Shower, large linen, Dual vanities and a sizeable walk in closet. The laundry room is a great size and includes a linen closet as well. This is a drive under home which includes a 2 car tandem garage and storage.
The location of Heron Preserve is located in one of the most desirable areas in the Tri County area. You are 2 miles to the nearest Lowes grocery store, 8.6 miles to Naval Weapons Station, 9.6 miles to Boeing/Airport, 6.3 miles to the Bettis Boat Landing on the Goose Creek Reservoir, minutes away from local dining, roughly 20 minutes to downtown Charleston, Summerville, & Mt Pleasant, nearest beaches 15-17 miles are Sullivan's Island and Isle of Palms.
Visit today to see what Heron Preserve has to offer. With only 87 homesites in the entire neighborhood this location is sure to sell out quickly.
Quick Facts
Time on Site
5 months ago
Property Type
Residential
Year Built
2025
Lot Size
2,613 sqft
Property Details
Schools
Features & Amenities
Location & Map
Map View
Loading map...
Additional Information
Lot And Land
Agent Contacts
Green Features
Community & H O A
Room Dimensions
Property Details
Exterior Features
Interior Features
Systems & Utilities
Financial Information
Additional Information
- IDX
- -80.00564
- 32.944575
- Raised


