




$690,000
743 Brookdale Drive
Greer, SC 29651
About This Property
This Property Has Been Sold
This property sold 4 years ago and is no longer available for purchase.
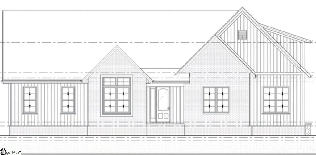
View active listings in Woodbridge →Under construction 3400 square foot 4 bedroom, 4.5 bath Custom floorplan on .62 acre lot in Greer!
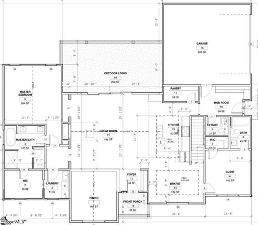
From the Foyer, the dining/flex room is to the left that can be used for anything from a dining room to an office. The large kitchen with huge eat-at island looks over the Vaulted Great room and another large eating area with tray ceiling. Off the kitchen is a large walk-in pantry and mudroom with drop zone area.
A half bath is off the mudroom area. On the main level is also a large laundry room with sink. Huge master suite with vaulted ceiling.
GVL MLS # 1460800
Quick Facts
Time on Site
4 years ago
Property Type
Residential
Year Built
2021
Lot Size
27,007 sqft
HOA Fees
$130/yr
Property Details
Schools
Features & Amenities
Features:
- High Ceilings
- Ceiling Fan(s)
- Vaulted Ceiling(s)
- Ceiling Smooth
- Open Floorplan
- Walk-In Closet(s)
- Countertops-Other
- Split Floor Plan
- Pantry
Location & Map
Map View
Loading map...
Additional Information
Community
- Street Lights
- Sidewalks
Lot & Land
- 1/2 - Acre
- Corner Lot
- Sloped
Tax Information
Interior Details
- Carpet
- Ceramic Tile
- Other
- Disposal
- Gas Water Heater
- Sink
- 1st Floor
- Walk-in
- Electric Dryer Hookup
- Laundry Room
- High Ceilings
- Ceiling Fan(s)
- Vaulted Ceiling(s)
- Ceiling Smooth
- Open Floorplan
- Walk-In Closet(s)
- Countertops-Other
- Split Floor Plan
- Pantry
- Gas Log
Parking & Garage
- Attached
- Paved
Exterior Features
- Architectural
- Attached
- Paved
- Crawl Space
- Front Porch
- Porch
- Brick Veneer
- Concrete
H O A & Association
Property Overview
- Two
- Other
Utilities & Systems
- Septic Tank
- Central Air
- Electric
- Natural Gas
- Cable Available
- Public
Listing Agent Information
The information is being provided by Greater Greenville MLS. Information deemed reliable but not guaranteed. Information is provided for consumers' personal, non-commercial use, and may not be used for any purpose other than the identification of potential properties for purchase. Copyright 2025 Greater Greenville MLS. All Rights Reserved.
You Might Also Like...
Interested in selling in Woodbridge?


