

$217,200
5 Royal Pine Way Lot 39
Greer, SC 29650
About This Property
This Property Has Been Sold
This property sold 6 years ago and is no longer available for purchase.
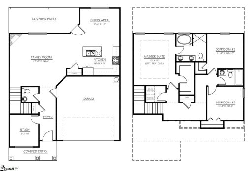
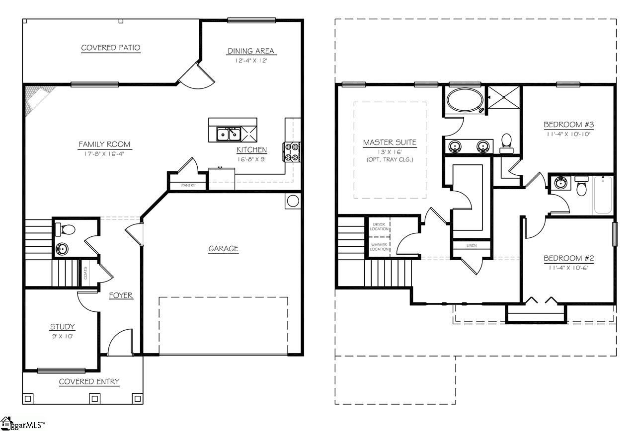
View active listings in Magnolia Green →3 Bedroom 2.5 Bath plus Office home being built in Magnolia Green! Home features Tray Ceiling in Master - Double Sinks, Garden Tub, Separate Shower in Master Bath - Granite Countertops and 42" Cambridge flat panel cabinetry in Kitchen - and Stainless Steel Appliances!
**Builder Incentive offered if using recommended Lender and Closing Attorney!** Community is Private Roads.
GVL MLS # 1417682
Quick Facts
Time on Site
6 years ago
Property Type
Residential
Year Built
2020
Lot Size
5,662 sqft
HOA Fees
$250/yr
Property Details
Schools
Features & Amenities
Features:
- High Ceilings
- Ceiling Smooth
- Tray Ceiling(s)
- Granite Counters
- Open Floorplan
- Countertops-Other
- Pantry
Location & Map
Map View
Loading map...
Additional Information
Lot & Land
- 1/2 Acre or Less
Tax Information
Interior Details
- Carpet
- Vinyl
- Other
- Dishwasher
- Free-Standing Electric Range
- Microwave
- Gas Water Heater
- 2nd Floor
- Walk-in
- Laundry Room
- High Ceilings
- Ceiling Smooth
- Tray Ceiling(s)
- Granite Counters
- Open Floorplan
- Countertops-Other
- Pantry
- Gas Log
- Ventless
Parking & Garage
- Attached
- Paved
- Garage Door Opener
Exterior Features
- Architectural
- Attached
- Paved
- Garage Door Opener
- Slab
- Patio
- Front Porch
- Porch
- Vinyl Siding
H O A & Association
Property Overview
- Two
- Traditional
Utilities & Systems
- Public Sewer
- Central Air
- Electric
- Natural Gas
- Underground Utilities
- Public
Listing Agent Information
The information is being provided by Greater Greenville MLS. Information deemed reliable but not guaranteed. Information is provided for consumers' personal, non-commercial use, and may not be used for any purpose other than the identification of potential properties for purchase. Copyright 2025 Greater Greenville MLS. All Rights Reserved.
You Might Also Like...
Interested in selling in Magnolia Green?


