




$184,990
44 Jones Creek Circle
About This Property
This Property Has Been Sold
This property sold 7 years ago and is no longer available for purchase.
View active listings in Jones Creek Gardens →Under construction. Estimated completion date is August 2018. Diamond Series 2304-B NEW two-story home with two-car garage!
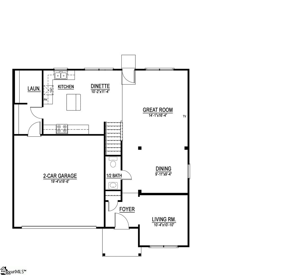
The main floor has a private living room in the front of the home, and an open dining room and great room that lead around to the dinette and kitchen. Half bath and laundry room also on main floor. The 2nd floor features the owner's suite with full bath and walk in closet, as well as 3 additional bedrooms another full bath, and a loft!
$95 holds the home with approved lender and attorney! Buy now on our website!
Quick Facts
Time on Site
7 years ago
Property Type
Residential
Year Built
2018
Lot Size
2,178 sqft
Property Details
Schools
Features & Amenities
Location & Map
Map View
Loading map...
Additional Information
Agent Contacts
- Greenville: (864) 757-4000
- Simpsonville: (864) 881-2800
Community & H O A
Room Dimensions
Property Details
Exterior Features
Interior Features
- 1st Floor
- Dryer – Electric Hookup
- Carpet
- Vinyl
- Dishwasher
- Stand Alone Rng-Electric
- Attic
- Garage
- Comb Liv & Din Room
- Laundry
- Loft
- Attic Stairs Permanent
- Cable Available
- Ceiling Fan
- Smoke Detector
- Tub Garden
- Walk In Closet
- Pantry – Walk In
Systems & Utilities
- Central Forced
- Electric
Showing & Documentation
- Appointment/Call Center
- Vacant
The information is being provided by Greater Greenville MLS. Information deemed reliable but not guaranteed. Information is provided for consumers' personal, non-commercial use, and may not be used for any purpose other than the identification of potential properties for purchase. Copyright 2025 Greater Greenville MLS. All Rights Reserved.
