




$172,990
42 Jones Creek Circle
Greer, SC 29650
About This Property
This Property Has Been Sold
This property sold 8 years ago and is no longer available for purchase.
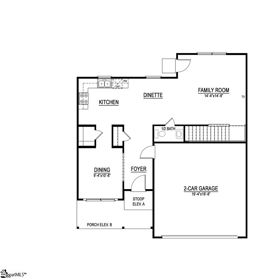
View active listings in Jones Creek Gardens →Under construction. Estimated completion date is August 2018. Diamond Series 1826-B NEW 2 story home with 2 car garage!
The main floor has a nice open floor plan connecting the family room, dinette and kitchen. Also on the main floor is a private dining room and half bath. The 2nd floor features the owner's suite with huge walk in closet and private bathroom.
Additionally upstairs are 3 other bedrooms, another full bath and the laundry room. $95 holds the home with approved lender and attorney! Buy now on our website!
GVL MLS # 1362097
Quick Facts
Time on Site
8 years ago
Property Type
Residential
Year Built
2018
Lot Size
2,178 sqft
HOA Fees
$110/mo
Property Details
Schools
Features & Amenities
Features:
- Soaking Tub
- Walk-In Closet(s)
- Pantry
Location & Map
Map View
Loading map...
Additional Information
Community
- Common Areas
- Street Lights
- Lawn Maintenance
Lot & Land
- 1/2 Acre or Less
Tax Information
Interior Details
- Carpet
- Vinyl
- Dishwasher
- Free-Standing Electric Range
- Electric Water Heater
- 2nd Floor
- Walk-in
- Laundry Room
- Soaking Tub
- Walk-In Closet(s)
- Pantry
Parking & Garage
- Attached
- Paved
Exterior Features
- Composition
- Attached
- Paved
- Slab
- Front Porch
- Vinyl Siding
H O A & Association
Property Overview
- Two
- Traditional
Utilities & Systems
- Public Sewer
- Central Air
- Electric
- Electric
- Cable Available
- Public
Listing Agent Information
The information is being provided by Greater Greenville MLS. Information deemed reliable but not guaranteed. Information is provided for consumers' personal, non-commercial use, and may not be used for any purpose other than the identification of potential properties for purchase. Copyright 2025 Greater Greenville MLS. All Rights Reserved.
You Might Also Like...
Interested in selling in Jones Creek Gardens?

