



$263,700
413 Windsinger Lane
About This Property
This Property Has Been Sold
This property sold 4 years ago and is no longer available for purchase.
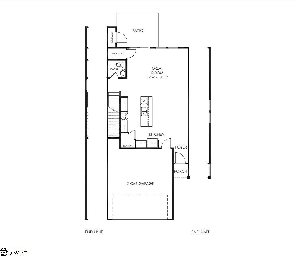
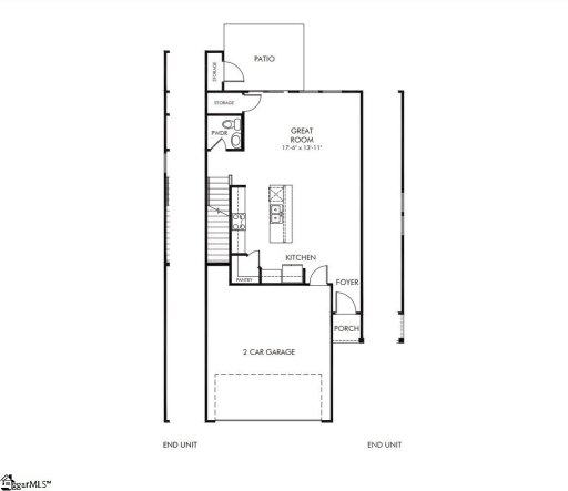
View active listings in Echo Ridge →Brand NEW energy-efficient townhome ready March 2021! At the heart of this Opal's open-concept main level, the kitchen boasts an island perfect for entertaining. Upstairs, enjoy a convenient laundry room and loft.
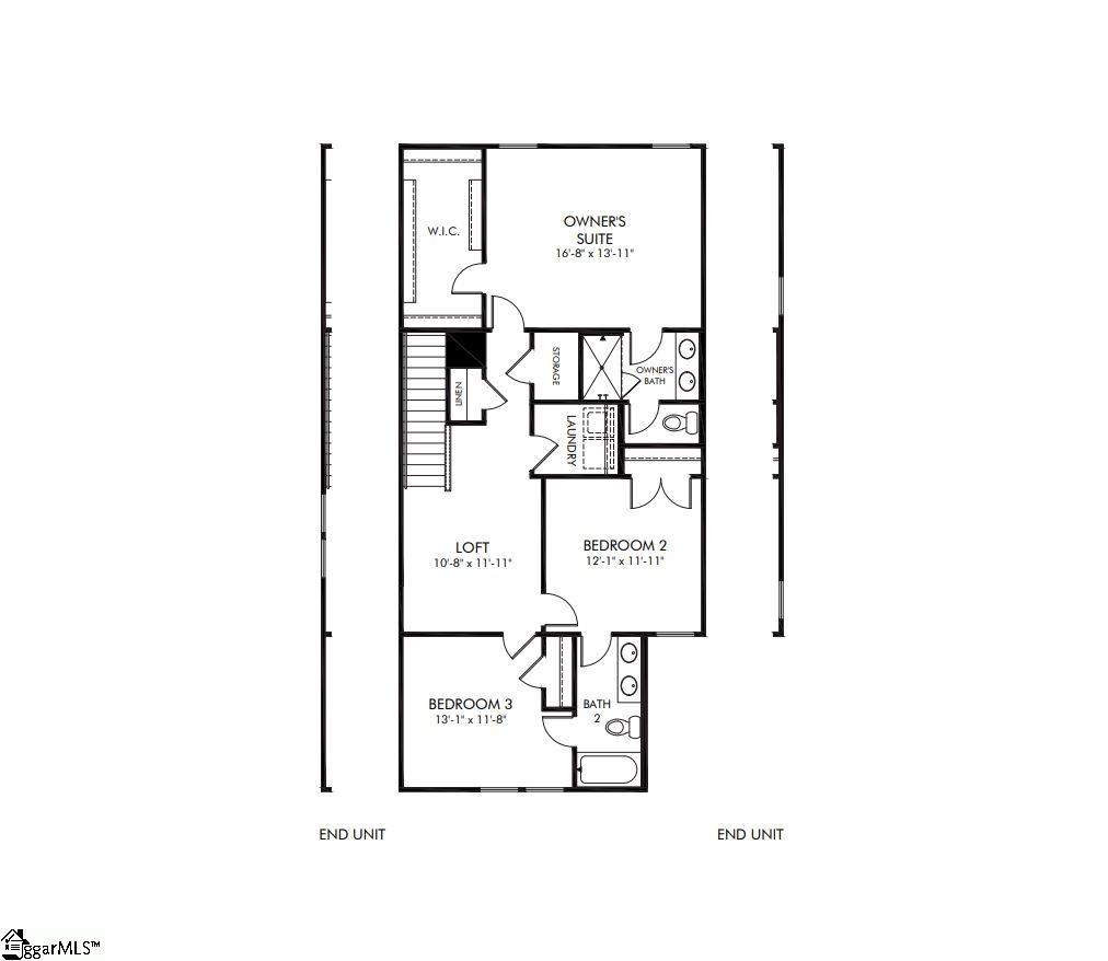
The primary suite features a generous walk-in closet and bath. Echo Ridge will feature a debut collection of energy-efficient townhome floor plans conveniently located near schools, shopping and entertainment. Known for our energy saving features, our homes help you live a healthier and quieter lifestyle, while saving you thousands on utility bills.
Like: Spray foam insulation in the attic for energy saving and better health • Low E windows for 15% less heating/cooling costs • ENERGY STAR appliances for lower energy costs • CFL/LED lighting for about 75% less energy costs • Fresh-air management system for clean, fresh air circulation • 14 SEER HVAC helps save energy and money • Conditioned attic helps seal out particulates, rodents and noise • PEX plumbing is more resistant to freeze breakage • Minimum Merv 8 filtration helps minimize indoor particulates CFL/Led energy efficient light bulbs.
GVL MLS # 1435091
Quick Facts
Time on Site
5 years ago
Property Type
Residential
Year Built
2021
Lot Size
1,742 sqft
Property Details
Schools
Features & Amenities
Location & Map
Map View
Loading map...
Additional Information
Agent Contacts
- Greenville: (864) 757-4000
- Simpsonville: (864) 881-2800
Community & H O A
Room Dimensions
Property Details
- Other/See Remarks
- Craftsman
- Corner
- Some Trees
- Underground Utilities
Exterior Features
- Patio
- Tilt Out Windows
- Windows-Insulated
- Outdoor Fireplace
Interior Features
- 2nd Floor
- Walk-in
- Carpet
- Ceramic Tile
- Wood
- Cook Top-Gas
- Dishwasher
- Disposal
- Stand Alone Range-Gas
- Oven-Self Cleaning
- Oven-Gas
- Microwave-Built In
- Comb Liv & Din Room
- Laundry
- Loft
- Attic Stairs Disappearing
- Ceiling 9ft+
- Ceiling Smooth
- Ceiling Trey
- Countertops Granite
- Countertops-Solid Surface
- Open Floor Plan
- Smoke Detector
- Walk In Closet
Systems & Utilities
- Gas
- Tankless
- Central Forced
- Electric
Showing & Documentation
- Warranty Furnished
- House Plans
- Restric.Cov/By-Laws
- Termite Bond
- Energy Star Docs
- Pre-approve/Proof of Fund
- Specified Sales Contract
- Other/See Remarks
The information is being provided by Greater Greenville MLS. Information deemed reliable but not guaranteed. Information is provided for consumers' personal, non-commercial use, and may not be used for any purpose other than the identification of potential properties for purchase. Copyright 2025 Greater Greenville MLS. All Rights Reserved.
